PROPERTY SUMMARY Home Paddock Stables offer a unique opportunity to own approximately 2.24 Acres of equestrian land just south of the Downs. The accommodation on site make this an attractive proposition for anyone wanting high quality facilities to enjoy their hobby. There is a fully fitted kitchen, lounge and bathroom with a comfortable rest room. There is also a utility room to keep your kit clean.
Viewing is strictly by appointment to appreciate the location and accommodation on offer.
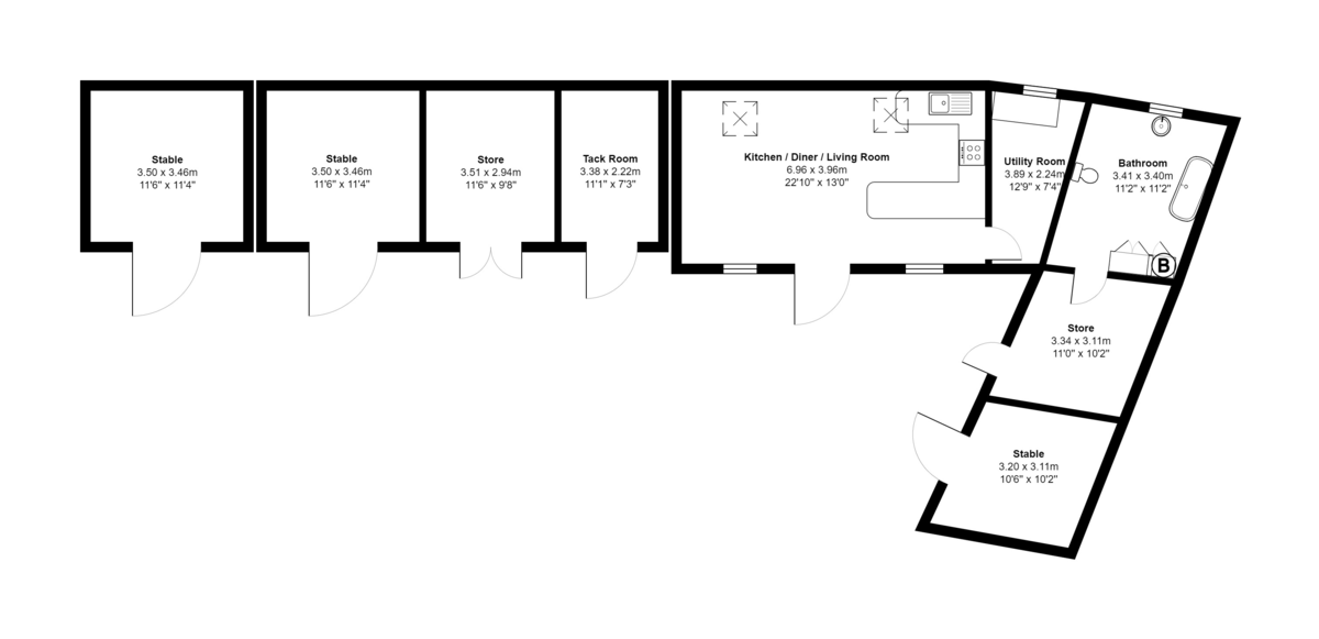
LOUNGE / KITCHEN 21' 10" x 13' 0" (6.65m x 3.96m) Kitchen: Comprehensive range of white gloss floor units with granite effect work surface, stainless steel sink with mixer tap, Lamona ceramic hob with Lamona oven under and extractor hood, fan and light over, two floor units with curved doors, wall unit with glazed door and shelving, wine rack, under unit lighting, power points, vaulted ceiling with wooden support beam, twin skylight windows, ceiling spotlights, electric radiator.
Lounge: Vaulted ceiling with wooden support beam, twin skylight windows, electric radiator, ceiling spotlights, two double glazed windows to side aspect, large wooden stable style door, matching flooring, glazed door leading to:
UTILITY ROOM 12' 9 max" x 7' 4 max" (3.89m x 2.24m) Space and plumbing for washing machine and tumble dryer, space for fridge/freezer, power points, laminate flooring, electric heater, high level obscured glass double glazed window to the rear, door to:
BATHROOM 11' 2" x 11' 2" (3.4m x 3.4m) Free standing claw footed bath with mixer tap and shower attachment, contemporary style wash hand basin, low level w.c, electric towel rail, ceiling spotlights, door to wardrobe and door to airing cupboard housing electric hot water cylinder, high level obscured glass double glazed window to the rear, Door to:
STORE / DAY ROOM 11' 0" x 10' 2" (3.35m x 3.1m) Wood laminate flooring, tongue and groove wall panelling, electric radiator, power points, stable style door to front.
STABLE 11' 7" x 10' 6" (3.53m x 3.2m)
STABLE 1 11' 6" x 11' 4" (3.51m x 3.45m)
STABLE 2 11' 6" x 11' 0" (3.51m x 3.35m)
BARN 11' 6" x 9' 8" (3.51m x 2.95m)
TACK ROOM 11' 1" x 7' 3" (3.38m x 2.21m)
At present there are no residential rights to the property.
No Application has been made for permanent residence in the past, but an application for overnight temporary accommodation was turned down.
As such it is being sold as paddocks and stables only, and our vendor would not consider an offer subject to a change of use application.
Read less