A detached two double bedroom bungalow which is situated in a desirable residential location yet within easy access of local amenities. The accommodation offers 1056 sq ft of living space. To the rear is a mature garden with areas for ‘al-fresco’ dining and a lawn with rockery style borders and a 23’ shed. Viewing of this impressive bungalow is strongly recommended in order to appreciate not only the accommodation but also the location on offer.
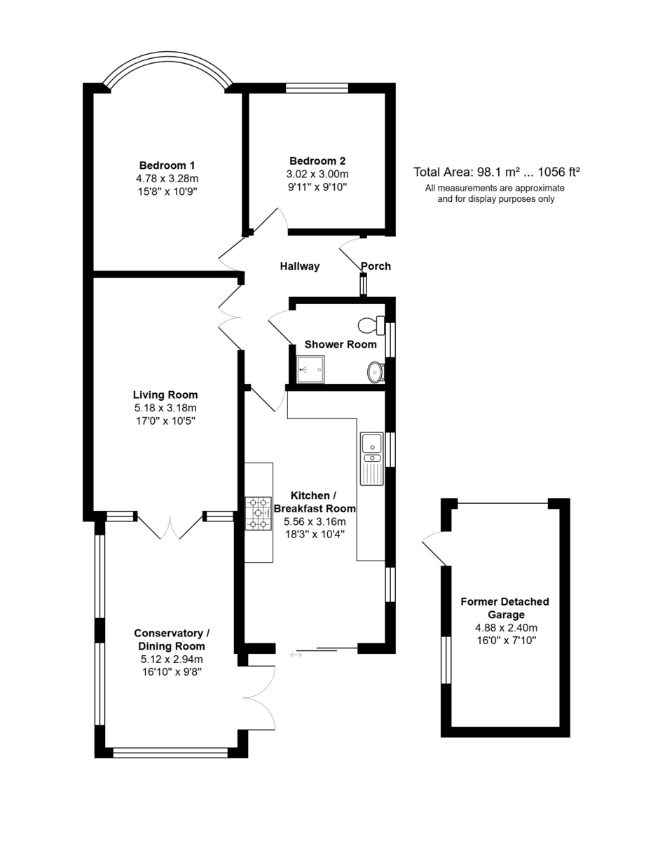
PROPERTY SUMMARY A detached two double bedroom bungalow which is situated in a desirable residential location yet within easy access of local shopping amenities, bus routes, surgeries, commutable road links and within catchment for both Solent & Springfield Schools (subject to confirmation). The accommodation offers 1056 sq ft of living space and comprises: hallway, two double bedrooms to the front aspect, wet room / shower room, 18' fitted kitchen / breakfast room, 17' living room and conservatory. To the front is a gated entrance leading to brick paved off road parking with borders of mature shrubs and evergreens, the driveway continues to the left-hand side of the property to the former detached garage (currently used as a store). To the rear is a mature garden with areas for 'al-fresco' dining and a lawn with rockery style borders and a 23' shed. Viewing of this impressive bungalow is strongly recommended in order to appreciate not only the accommodation but also the location on offer.
ENTRANCE Pillared gateway with wrought iron twin gates leading to brick paviour hardstanding and turning area, to left hand side of the property is a driveway (restricted) leading to the rear garden, external meter cupboard, flowering shrub borders with evergreens and bushes, cold water tap, arched opening leading to covered porch, main front door with leadlight frosted panels leading to:
HALLWAY Wood flooring, low level cupboard housing electric consumer box, doors to primary rooms, access to loft space, radiator.
BEDROOM 2 9' 11" x 9' 10" (3.02m x 3m) Double glazed window to front aspect with radiator under, comprehensive range of fitted bedroom furniture including floor to ceiling wardrobes, one with a mirror fronted door, dressing table with mirror over, high level storage cupboards, ceiling coving.
BEDROOM 1 15' 8" into bay window x 10' 9" (4.78m x 3.28m) Double glazed bow bay window to front aspect overlooking driveway, comprehensive range of fitted bedroom furniture including floor to ceiling built-in wardrobes, bed side cabinets and overbed storage cupboards, dressing table with mirror over, radiator, ceiling coving.
WET ROOM / SHOWER ROOM Fully ceramic tiled to floor and walls, shower area with drench style hood, separate shower attachment and wall mounted controls, floor drain away, wash hand basin with mixer tap and cupboard under, mirror with automated lighting over, double glazed frosted window to side aspect, concealed cistern w.c., chrome heated towel rail.
KITCHEN/BREAKFAST ROOM 18' 3" x 10' 4" (5.56m x 3.15m) Comprehensive range of matching wall and floor units, inset 1½ bowl stainless steel sink unit with mixer tap, double glazed window to side aspect with radiator under, one wall mounted unit housing Vaillant boiler supplying domestic hot water and central heating (not tested), wine rack, corner storage cupboards, range of drawers, space and plumbing for dishwasher and washing machine, sliding double glazed door with full height panel to one side leading to rear garden, space for American style fridge/freezer, space for range style cooker with extractor hood, fan and light over, tiled flooring, radiator, glazed panelled door to hallway.
LIVING ROOM 17' 0" x 10' 5" (5.18m x 3.18m) Twin glazed doors to hallway, ceiling coving, central surround fireplace with coal effect gas fire (not tested), double glazed frosted widows to side aspect, ceiling rose, twin double glazed doors with full height windows to either side leading to conservatory style dining room.
CONSERVATORY / DINING ROOM 16' 10" x 9' 8" (5.13m x 2.95m) Polycarbonate glazed roof, high quality vinyl wood effect flooring, radiator, low retaining wall with double glazed twin doors and windows overlooking rear garden, high level double glazed windows to side aspect.
OUTSIDE Directly to the rear of the property is a patio area with curved border, central pillars and step leading up to lawned garden with rockery style border, the garden is enclosed by fence panelling on both sides, areas for 'al-fresco' dining, access to garage and side gated entrance.
STORE / SHED 23' 2" x 7' 10" (7.06m x 2.39m) Twin double glazed doors to front aspect, double glazed windows overlooking garden, power points.
FORMER DETACHED GARAGE 16' 0" x 7' 10" (4.88m x 2.39m) Currently used as a store, pitched roof, built-in shelving/work surface to one end, double glazed window to side aspect, high level storage space, partition wall leading front section with the original up and over door (disconnected), power points, double glazed door to side aspect.
AGENTS NOTES Council Tax Band D - Portsmouth City Council
Broadband – ADSL/FTTC Fibre Checker (openreach.com)
Flood Risk – Refer to - (GOV.UK (check-long-term-flood-risk.service.gov.uk)
AML Checks - By Law and in compliance with HMRC regulations, all agents are required to carry out Anti-Money Laundering (AML) checks on any buyer(s) who submit a successful offer. A non-refundable administration fee of £60 inc. VAT to cover these costs is payable by the buyer(s) before the sales transaction can be progressed.
Read less