An imposing, corner detached family home which is situated in one of East Cosham’s most popular elevated locations, within easy access of local shopping amenities, bus routes, commutable road and rail links, recreation grounds and within the catchment of both Court Lane and Springfield Schools (subject to confirmation). The accommodation is arranged over two floors and comprises: porch, hallway, shower room, living room, dining room, 15’ kitchen/breakfast room and utility room on the ground floor with four bedrooms and family bathroom on the first floor. Sitting centrally on the corner plot it has wrap-around gardens on three sides and views from the first floor towards Langstone Harbour and the Isle of Wight in the distance. The property is offered with gas fired central heating, double glazing, fitted floor coverings throughout and being located towards the upper cul-de-sac section of East Cosham Road, early internal viewing is strongly recommended.
PROPERTY SUMMARY An imposing, corner detached family home which is situated in one of East Cosham's most popular elevated locations, within easy access of local shopping amenities, bus routes, commutable road and rail links, recreation grounds and within the catchment of both Court Lane and Springfield Schools (subject to confirmation). The accommodation is arranged over two floors and comprises: porch, hallway, shower room, living room, dining room, 15' kitchen/breakfast room and utility room on the ground floor with four bedrooms and family bathroom on the first floor. Sitting centrally on the corner plot it has wrap-around gardens on three sides and views from the first floor towards Langstone Harbour and the IOW in the distance. The property is offered with gas fired central heating, double glazing, fitted floor coverings throughout and being located towards the upper cul-de-sac section of East Cosham Road, early internal viewing is strongly recommended in order to appreciate both the accommodation and location on offer.
ENTRANCE Lowered kerb leading to soldier railing style wrought iron gates and pedestrian gate, brick paviour driveway to the front of the garage, to the left hand side is a paved area with hedge and pathway leading to side garden onto Courtmount Grove side, cold water tap, lighting. To the right hand side of the garage is a raised bordered area leading to further garden, letterbox, double glazed main front door to:
PORCH Full height double glazed windows on two sides, tiled flooring, internal double glazed door with leadlight stained glass panel leading to:
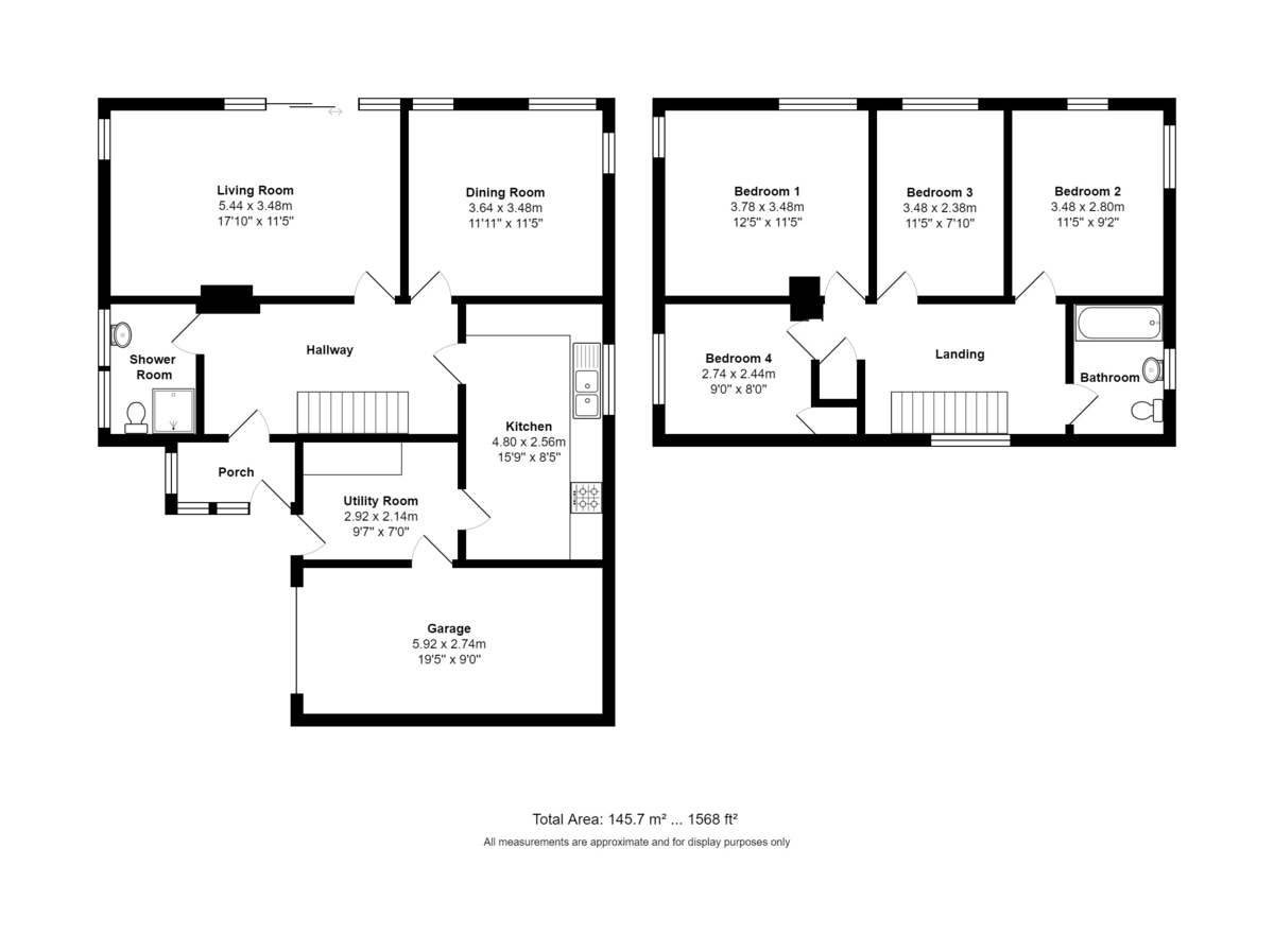
HALLWAY Wood laminate flooring, staircase rising to first floor with understairs storage area, picture rail, radiator, textured ceiling with coving, doors to primary rooms.
SHOWER ROOM Fully ceramic tiled shower cubicle with panelled door, low level w.c., ceramic tiled to half wall level, pedestal wash hand basin with mirror over, high level frosted double glazed window to front aspect, radiator, tiled flooring.
LIVING ROOM 17' 10" x 11' 5" (5.44m x 3.48m) Double glazed window to side aspect overlooking garden, dado rail, textured ceiling with coving, brick surround fireplace with tiled hearth, double glazed sliding door with full height panels to either side leading to patio garden on the Courtmount Grove side.
DINING ROOM 11' 11" x 11' 5" (3.63m x 3.48m) High level double glazed window to side aspect with tiled sill, full height double glazed window overlooking patio with window to one side with matching sill, ceiling coving.
KITCHEN 15' 9" x 8' 5" (4.8m x 2.57m) Doorway to hallway with glazed panel to one side, comprehensive range of white fronted wall and floor units with roll top work surface, tiled surrounds, inset twin bowl stainless steel sink unit with mixer tap, range of drawer units, tall larder unit, double glazed window to side aspect, tiled flooring, inset four ring gas hob with drawers under, extractor hood, fan and light over, eye-level double oven and grill with storage cupboards over and drawer under, textured ceiling with coving, radiator, double glazed door leading to:
UTILITY ROOM 9' 7" x 7' 0" (2.92m x 2.13m) Door to driveway, space and plumbing for washing machine, tiled flooring, door to:
GARAGE 19' 5" x 9' 0" (5.92m x 2.74m) Up and over door, fluorescent tube lighting, power points, wall mounted Vaillant boiler supplying domestic hot water and central heating (not tested), range of cupboards and shelving.
FIRST FLOOR Landing with balustrade, access to loft space, double glazed window to side aspect, dado rail, doors to primary rooms, built-in storage cupboard with range of shelving.
BEDROOM 1 12' 5" x 11' 5" (3.78m x 3.48m) Double glazed window to side aspect and matching high level window to side both with plantation shutter blinds and far reaching views towards Langstone Harbour, the City of Portsmouth and Isle of Wight beyond, radiator.
BEDROOM 4 9' 0" x 8' 0" (2.74m x 2.44m) Double glazed window to front aspect with plantation shutter blinds, built-in storage cupboard with range of shelving, radiator.
BEDROOM 3 11' 5" x 7' 10" (3.48m x 2.39m) Double glazed window to side aspect with plantation shutter blinds and far reaching views over roof tops towards Langstone Harbour, Hayling Island, the City of Portsmouth and Isle of Wight beyond, radiator.
BEDROOM 2 11' 5" x 9' 2" (3.48m x 2.79m) Dual aspect double glazed windows to side and rear with plantation shutter blinds, radiator, textured ceiling with coving.
FAMILY BATHROOM White suite comprising: panelled bath with hand grips, telephone style mixer tap and shower attachment, wash hand basin with mixer tap, low level w.c., radiator, ceramic tiled surrounds, high level frosted double glazed window to rear aspect, tiled flooring.
OUTSIDE Access from East Cosham Road leads to brick paviour hardstanding to the front of the garage with wrought iron soldier railing gates, to the left hand side of the driveway is a brick paved patio area with further pathway and false grass to one side with mature shrubs, evergreens and bushes leading to a southerly garden on Courtmount Grove side with patio area, high hedge with pathway providing side pedestrian access. To the right hand side is a driveway and raised flower beds with steps leading to raised garden with range of flower beds and fruit trees, raised patio area with fence panelling surround.
AGENTS NOTES Council Tax Band E - Portsmouth City Council
Broadband – ASDL/FTTC Fibre Checker (openreach.com)
Flood Risk – Refer to - (GOV.UK (check-long-term-flood-risk.service.gov.uk)
AML Checks - By Law and in compliance with HMRC regulations, all agents are required to carry out Anti-Money Laundering (AML) checks on any buyer(s) who submit a successful offer. A non-refundable administration fee of £60 inc. VAT to cover these costs is payable by the buyer(s) before the sales transaction can be progressed.
Read less