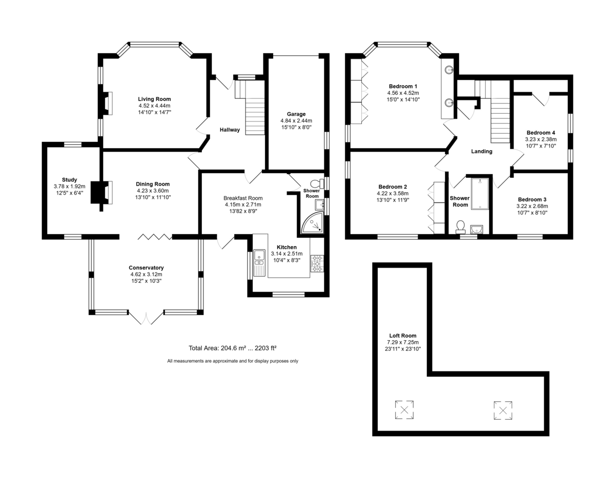
PROPERTY SUMMARY This versatile detached family home is situated in an elevated location near to local amenities, bus routes, Portsdown Hill recreation grounds, commutable road and rail links and is in catchment for both Court Lane and Springfield Schools (subject to confirmation). The accommodation which is primarily arranged over two floors offers 2203 sq of living space and comprises: hallway, 14' living room, 13' dining room, leading to a study and conservatory, breakfast room interlinking to the kitchen and shower room on the ground floor with four bedrooms and a shower room on the first floor, the loft has been fully boarded and carpeted with two skylight windows offering the potential to be converted into a further room with the necessary planning consents. The house sits proudly back from the road and is with ample parking to the front with an integral garage, to the rear is an enclosed easterly facing rear garden. Early viewing of this family home is strongly recommended in order to appreciate not only the accommodation but also the location on offer.
ENTRANCE Pillared gateway leading to brick paviour driveway with off road parking for numerous cars, to the left hand side of the property is a high retaining brick wall with shingle border and side pedestrian access leading to rear garden, cold water tap, to the right hand side is a raised lawned area with mature trees and bushes with further parking facilities, integral garage, curved step to covered porch and double glazed main front door with frosted panels leading to:
HALLWAY Double glazed window with frosted panel to one side, infinity ceiling, picture rail, balustrade staircase rising to first floor with understairs cupboard housing gas & electric meters, central heating control switch, panelled doors to primary rooms.
LIVING ROOM 14' 10" into bay window x 14' 7" (4.52m x 4.44m) Double glazed bay window to front aspect with double radiator under, central chimney breast with brickette surround fireplace with clay peg tiled hearth and mantle over, double glazed windows to either side of chimney breast, infinity ceiling, picture rail.
DINING ROOM 13' 10" x 11' 10" (4.22m x 3.61m) Frosted double glazed window to side aspect providing borrowed light to study, radiator, infinity ceiling, picture rail, central chimney breast with brickette surround fireplace with clay peg tiled hearth and wooden mantle, square opening leading to study, bi-folding doors leading to conservatory.
STUDY 12' 5" x 6' 4" to front of chimney breast (3.78m x 1.93m) Double glazed windows to front aspect overlooking driveway and to rear aspect overlooking garden, textured ceiling, radiator.
CONSERVATORY 15' 2" x 10' 3" (4.62m x 3.12m) Polycarbonate glazed roof with central fan, twin double glazed doors and full height windows leading to rear garden, windows to either side with top openers all with built-in blinds, electric panel heater, bi-folding doors leading to dining room, ceramic tiled flooring.
BREAKFAST ROOM 13' 8" x 8' 9" (4.17m x 2.67m) Square opening leading to kitchen, double glazed door with frosted panels leading to rear garden, laminate flooring, door to hallway and shower room, tall integrated fridge and freezer with matching doors and larder pull-out unit to one side, integrated fridge with matching door, ceramic tiled surrounds, under unit lighting, radiator.
KITCHEN 10' 4" x 8' 3" (3.15m x 2.51m) Comprehensive range of matching wall and floor units, inset stainless steel Blanco 1½ bowl sink with mixer tap, integrated dishwasher and washing machine with matching doors, range of pan drawers, space for free standing range style cooker with Neff extractor hood, fan and light over and microwave shelf to one side, ceramic tiled surrounds, under unit lighting, dual aspect double glazed windows to side and rear overlooking garden, matching flooring, ceiling spotlights.
SHOWER ROOM Ceramic tiled shower cubicle with curved panelled doors, wall mounted wash hand basin with mixer tap, tiled flooring, low level w.c., frosted double glazed windows to side aspect, textured ceiling and spotlights, extractor fan.
FIRST FLOOR Landing with balustrade, loft room, accessed via extendable ladder, storage cupboard with shelving.
BEDROOM 4 10' 7" x 7' 10" (3.23m x 2.39m) Measurements taken from approximately 4'0" off floor level with eaves to front ceiling restricting headroom, double glazed window to side access, double radiator, access to loft storage eaves.
BEDROOM 3 10' 7" x 8' 10" (3.23m x 2.69m) Double glazed window to rear aspect overlooking garden with radiator under, infinity ceiling, picture rail.
SHOWER ROOM Shower cubicle with glazed doors, drench style hood and separate shower attachment, extractor fan, ceiling spotlights, double glazed frosted window to rear aspect, vanity unit with wash hand basin and cupboards under with shelving to either side, concealed cistern w.c., heated towel rail.
BEDROOM 2 13' 10" x 11' 9" (4.22m x 3.58m) Double glazed window to side aspect, infinity ceiling, picture rail, double glazed window to rear aspect overlooking garden, radiator, range of floor to ceiling built-in wardrobes to one wall with rails and shelving.
BEDROOM 1 15' 0" into bay window x 14' 10" (4.57m x 4.52m) Double glazed bay window to front aspect overlooking driveway, double radiator, range of built-in furniture including floor to ceiling built-in wardrobes to one wall, two with mirror fronted doors, rails, shelving and pelmet lighting over, chest of drawers, bedside chest of drawers, two wash hand basins with mixer taps and cupboards under, double glazed window to side aspect, infinity ceiling, picture rail.
LOFT SPACE 23' 11" decreasing to 7'5" x 23' 10" decreasing to 7'8" (7.29m x 7.26m) L shaped, measurements taken from approximately 3'5" off floor level with eaves to front and side, maximum central ceiling height 7'1", fully boarded and carpeted, accessed via hatch and extendable ladder from landing, two skylight windows to rear aspect with blinds, access to further loft storage space.
OUTSIDE To the rear is a raised terrace with steps leading down to lower terrace and steps up to conservatory, steps to level lawned garden enclosed by hedges and fence panelling, large wooden built garden shed, range of fruit trees, shrubs and evergreens.
INTEGRAL GARAGE 15' 10" x 8' 0" (4.83m x 2.44m) Remote controlled roller up and over door, window to side aspect, high ceiling, wall mounted Worcester boiler supplying domestic hot water and central heating (not tested), range of shelving, power points.
AGENTS NOTES Council Tax Band F - Portsmouth City Council
Broadband – ADSL/FTTC Fibre Checker (openreach.com)
Flood Risk – Refer to - (GOV.UK (check-long-term-flood-risk.service.gov.uk)
AML Checks - By Law and in compliance with HMRC regulations, all agents are required to carry out Anti-Money Laundering (AML) checks on any buyer(s) who submit a successful offer. A non-refundable administration fee of £60 inc. VAT to cover these costs is payable by the buyer(s) before the sales transaction can be progressed.
Read less