PROPERTY SUMMARY Dreton Lodge is a beautiful Churchill development of 54 one and two bedroom apartments exclusively for the over 60s, ideally located in Drayton with surgeries, independent coffee shops and restaurants, the Drayton Centre which hosts Bridge and Pilates classes all on the doorstep. The popular and famous waterfront City of Portsmouth with its Victorian promenade, Southsea Castle, Gunwharf Quays to name but a few of the local places of interest are all accessible using the regular bus service. Dreton Lodge is set within landscaped surroundings creating a tranquil environment and other facilities include lift service to all floors, Lodge Manager, 24-hour support system, visitors Guest Suite and Owners' Lounge with Coffee Bar.
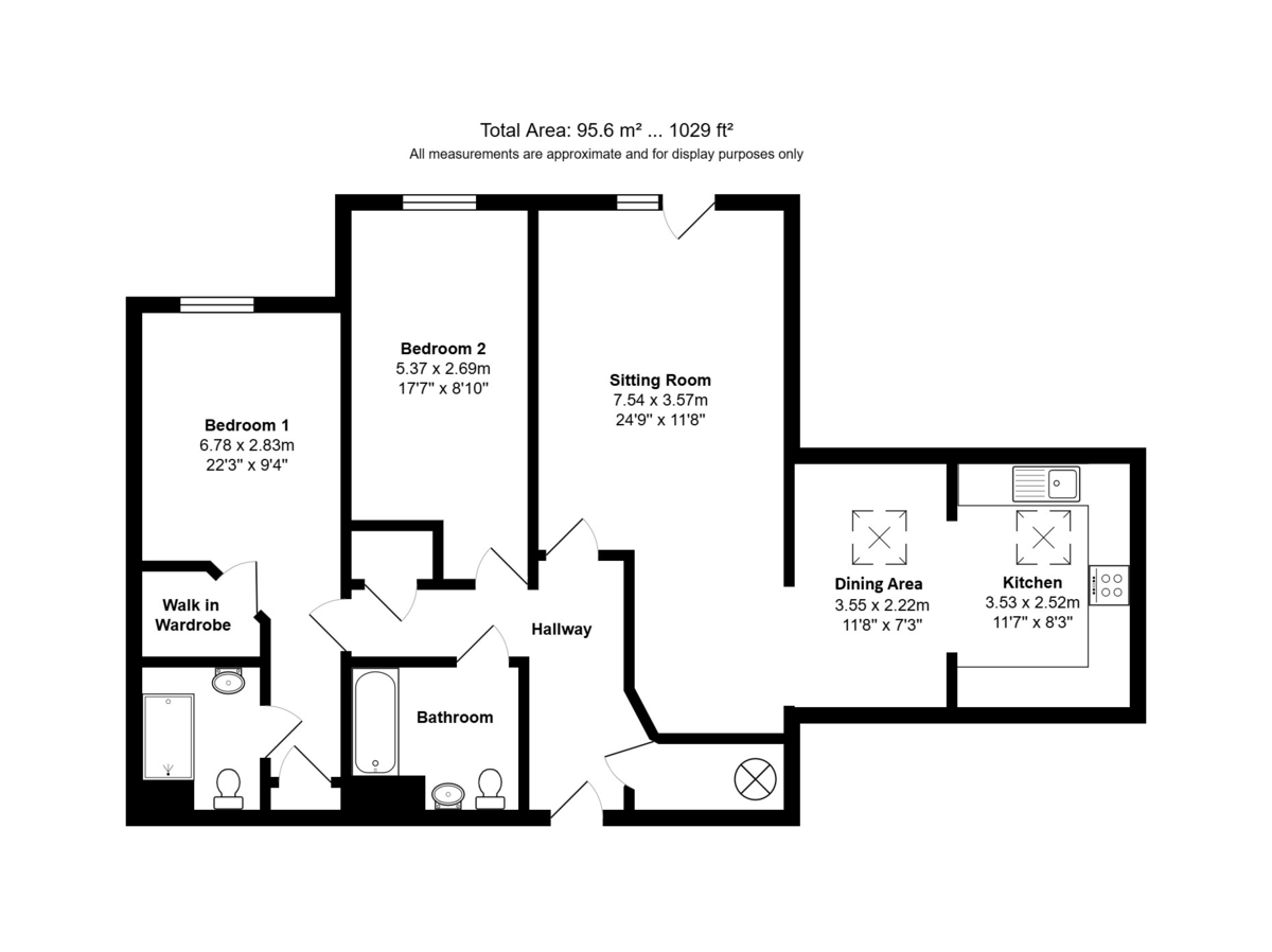
Apartment 47 is located at the front of Dreton Lodge on the third floor with 1029 sq ft of living space comprising: hallway with two large storage cupboards, 25' sitting room with doors to southerly facing false balcony, fitted kitchen and dining area, bathroom, two bedrooms the primary with walk-in wardrobe and en-suite shower room.
ENTRANCE Driveway leading to rear of the building and Owners' car parking, patio area seating and ramps to main front door, refuse room, access to main front door and Owners' Lounge with Managers office, reception area and Coffee Bar, from the communal lounge is an internal door leading to hallway with lift and staircase to all floors, guest cloakroom, digital Telecare panel with Careline system and alarm.
THIRD FLOOR Communal landing with doors to apartments 44 to 54 and Guest Suite, communal staircase, door to:
APARTMENT 47 Front door with security spyhole leading to:
HALLWAY L shaped, doors to primary rooms, Atlantic electric panel heater, digital control panel with Careline assistance, contacts and alarm, wired-in smoke alarm, high level power points and illuminated light switch, large walk-in airing cupboard with automated lighting, cloaks hooks, Gledhill hot water cylinder, range of shelving, Open Reach Connectivity electric consumer box, doors to primary rooms, further built-in storage cupboard with automated lighting.
SITTING ROOM OPENING TO DINING AREA & KITCHEN Width of combining rooms 25'0" incorporating dining, study and kitchen.
SITTING ROOM 24' 9" x 11' 8" (7.54m x 3.56m) Double glazed window to front aspect looking along Carshalton Avenue and over rooftops towards Langstone Harbour, Hayling Island and the City of Portsmouth in the distance, high level power points, T.V. aerial, Atlantic panel heater, smoke alarm, glazed panelled door leading to:
STUDY AREA Atlantic panel heating, high level power points, square opening leading to:
DINING AREA 11' 8" x 7' 3" (3.56m x 2.21m) Square opening leading to kitchen, skylight window to front aspect, high level power points.
KITCHEN 11' 7" x 8' 3" (3.53m x 2.51m) Skylight window to front aspect with slight eaves to ceiling restricting headroom. Comprehensive range of matching soft close wall and floor units, inset four ring Hoover electric hob with range of pan drawers under, extractor hood, fan and light over, ceramic tiled surrounds with under unit lighting, eye-level oven with shelf over and storage cupboard under, integrated fridge and freezer with matching doors, inset single drainer stainless steel sink unit with mixer tap, washing machine point, vinyl flooring, ceiling spotlights, extractor fan, alarm system.
BATHROOM White suite comprising; panelled bath with hand grips, mixer tap and shower attachment, folding shower screen and hand rail, ceramic tiled surrounds, vinyl flooring, Roca wash hand basin with mixer tap and cupboards under, lighting and cabinet over, extractor fan, concealed cistern w.c. with shelf over, chrome heated towel rail.
BEDROOM 2 17' 7" decreasing to 15'0" x 8' 10" (5.36m x 2.69m) Double glazed window to front aspect looking along Carshalton Avenue and over roof tops towards Langstone Harbour and the City of Portsmouth in the distance, high level power points, smoke alarm, Atlantic panel heater, illuminated light switch.
BEDROOM 1 22' 3" decreasing to 12'6" x 9' 4" (6.78m x 2.84m) Dormer double glazed window to front aspect looking along Carshalton Avenue with far reaching views towards Langstone Harbour and the City of Portsmouth in the distance, slight eaves to front ceiling restricting headroom, high level power points, Atlantic panel heater, wired-in alarm, built-in storage cupboard with automated light switch, door to en-suite shower room, walk-in wardrobe.
WALK-IN WARDROBE Range of rails and shelving, automated light, large door mirror.
EN-SUITE SHOWER ROOM Fully ceramic tiled large wet room style shower area with drying area to one end and large screen, hand grips, wall mounted controls and shower, vanity unit with Roca wash hand basin with mixer tap and cupboards under, cabinet, mirror and lighting over, concealed cistern w.c., vinyl flooring, chrome heated towel rail, extractor fan.
OUTSIDE From the Owners' Lounge is a small patio area leading to lawned communal gardens with paved seating areas, step and ramp to car parking.
MAINTENANCE Annual service charge £3,601.85
TENURE Leasehold – 999 year lease from 2025
AGENTS NOTES Council Tax Band C - Portsmouth City Council
Broadband – ADSL/FTTC Fibre Checker (openreach.com)
Flood Risk – Refer to - (GOV.UK (check-long-term-flood-risk.service.gov.uk)
AML Checks - By Law and in compliance with HMRC regulations, all agents are required to carry out Anti-Money Laundering (AML) checks on any buyer(s) who submit a successful offer. A non-refundable administration fee of £60 inc. VAT to cover these costs is payable by the buyer(s) before the sales transaction can be progressed.
Read less