PROPERTY SUMMARY A mid-terrace home which is situated in a popular residential location within easy access of local shopping amenities, schools (subject to confirmation), Fratton railway station with regular connections to London Waterloo and commutable road links are also nearby. The accommodation is arranged over two floors with 942 sq ft of living space and comprises: hallway, lounge, dining room, kitchen, bathroom and lean-to on the ground floor with two double bedrooms on the first floor. Offered with double glazing, gas fired central heating and with no forward chain, early viewing of this house is recommended to appreciate not only the accommodation but also the central location on offer.
ENTRANCE Brick retaining wall and gateway leading to forecourt, covered porch with double glazed main front door leading to:
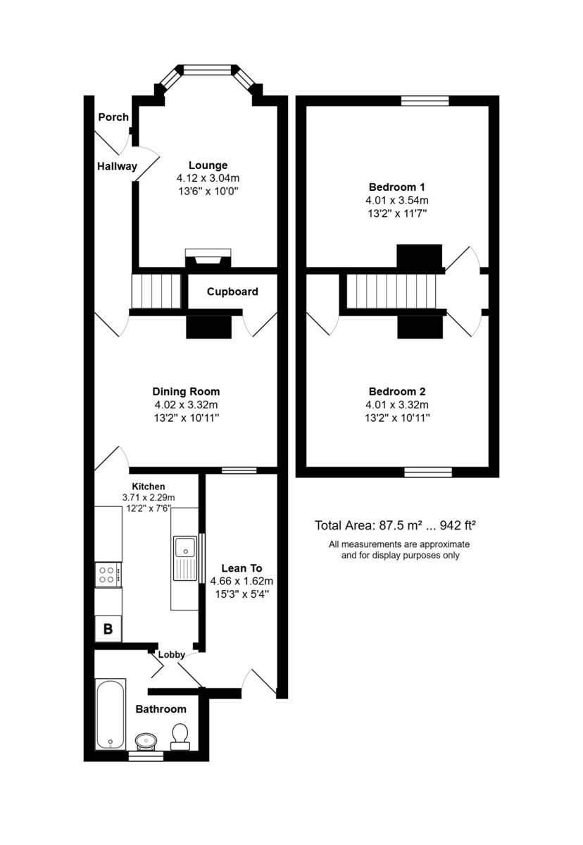
HALLWAY Laminate flooring, radiator, balustrade staircase rising to first floor, doors to lounge and dining room.
LOUNGE 13' 6" x 10' 0" (4.11m x 3.05m) Double glazed bay window to front aspect, central chimney breast with fireplace, hearth and flame effect gas fire (not tested), recessed shelving to both sides of chimney breast, radiator.
DINING ROOM 13' 2" x 10' 11" (4.01m x 3.33m) Double glazed window to rear aspect, ceiling rose, radiator, chimney breast, understairs storage cupboard with plumbing for washing machine, door to:
KITCHEN 12' 2" x 7' 6" (3.71m x 2.29m) Range of matching wall and floor units, single drainer stainless steel sink, space for cooker, extractor hood, fan and light, space for fridge/freezer, cupboard housing Vaillant boiler supplying domestic hot water and central heating (not tested).
OUTER LOBBY Door to bathroom, door to lean-to.
BATHROOM White suite comprising: low level w.c., wash hand basin, panelled bath with shower over, double glazed window to rear aspect, radiator.
LEAN-TO 15' 3" x 5' 4" (4.65m x 1.63m) Door to garden.
FIRST FLOOR Landing, doors to bedrooms.
BEDROOM 1 13' 2" x 11' 7" (4.01m x 3.53m) Double glazed window to rear aspect, textured ceiling with coving, built-in cupboard, radiator.
BEDROOM 2 13' 2" x 10' 11" (4.01m x 3.33m) Double glazed window to front aspect, textured ceiling with coving, radiator.
OUTSIDE Paved south facing garden enclosed by brick walls on all side, outside tap.
AGENTS NOTES Council Tax Band B - Portsmouth City Council
Broadband – ADSL/FTTC Fibre Checker (openreach.com)
Flood Risk – Refer to - (GOV.UK (check-long-term-flood-risk.service.gov.uk)
AML Checks - By Law and in compliance with HMRC regulations, all agents are required to carry out Anti-Money Laundering (AML) checks on any buyer(s) who submit a successful offer. A non-refundable administration fee of £60 inc. VAT to cover these costs is payable by the buyer(s) before the sales transaction can be progressed.
Read less