PROPERTY SUMMARY A three-bedroom, mid-terrace family home which is ideally located for local amenities, bus routes, shopping facilities, schools and commutable road and rail links nearby. The house has been restored and redecorated offering 1241 sq ft of living space comprising: hallway, 15' living room, dining room, cloakroom, 22' kitchen/breakfast room with bi-folding doors leading to the paved garden and on the first floor are three bedrooms and a family bathroom. The southerly facing garden is low maintenance with paved areas and a covered BBQ/outdoor kitchen with a sink, lighting and power, perfect for 'al-fresco' dining. The property is offered with central heating, double glazing and with no forward chain, early internal viewing of this 'turn key' family home is strongly recommended in order to appreciate not only the accommodation but the location on offer.
ENTRANCE Rendered and painted retaining wall with pillared gateway leading to tiled forecourt with bark chippings, main front door leading to:
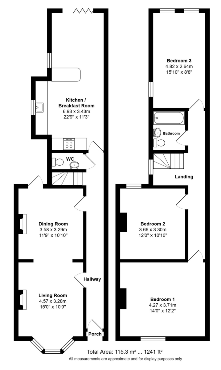
HALLWAY Staircase rising to first floor, ceiling coving, picture rail, dado rail, feature arch, doors to primary rooms.
LIVING ROOM 15' 0" into bay window x 10' 9" (4.57m x 3.28m) Double glazed bay window to front aspect, square opening leading to dining area, double radiator, ceiling rose and coving, picture rail, central chimney breast with granite hearth and mantle over.
DINING ROOM 11' 9" x 10' 10" (3.58m x 3.3m) Overall depth of adjoining rooms 26'9" Double glazed door to rear garden, radiator, ceiling rose and coving, picture rail, central chimney breast with granite hearth and wooden mantle over.
CLOAKROOM Fully ceramic tiled to floor and walls, close coupled w.c., pedestal wash hand basin with mixer tap, mirror, understairs storage cupboard housing gas and electric meter.
KITCHEN / BREAKFAST ROOM 22' 9" x 11' 3" maximum, decreasing to 8'8" at narrowest point (6.93m x 3.43m) Kitchen: Comprehensive range of matching navy blue fronted wall and floor units with wood block surface, sink unit with mixer tap, range of storage cupboards and drawers, integrated fridge and washing machine with matching doors, peninsular style divide with breakfast bar to one side leading to breakfast room, double glazed window to side aspect, two wall mounted units with glazed doors, inset electric hob with oven under, extractor hood, fan and light over, ceiling coving, tiled flooring, radiator.
Breakfast area: Double glazed window to side aspect, radiator, built-in cupboard housing boiler supplying domestic hot water and central heating (not tested), bi-folding double glazed doors leading to rear garden, matching flooring, ceiling coving.
FIRST FLOOR Landing with window to side aspect, ceiling coving, access to loft space, picture rail, doors top primary rooms.
BEDROOM 1 14' 0" x 12' 2" (4.27m x 3.71m) Double glazed window to front aspect, central chimney breast with marble hearth, ceiling rose, picture rail, radiator.
BEDROOM 2 12' 0" x 10' 10" (3.66m x 3.3m) Double glazed window to rear aspect, radiator, ceiling coving.
BEDROOM 3 15' 10" x 8' 8" (4.83m x 2.64m) Double glazed windows to side and rear aspects, radiator, ceiling coving.
BATHROOM White suite comprising: panelled bath with mixer tap, separate shower over with drench style hood and folding screen, pedestal wash hand basin, low level w.c., ceramic tiled to floro and walls, frosted double glazed window to side aspect, large mirror, extractor fan.
OUTSIDE To the rear accessible from the dining area and kitchen is a southerly facing paved garden, rear pedestrian access, covered patio/BBQ area with sink, power points and lighting.
AGENTS NOTES Council Tax Band B - Portsmouth City Council
Broadband – ADSL/FTTC Fibre Checker (openreach.com)
Flood Risk – Refer to - (GOV.UK (check-long-term-flood-risk.service.gov.uk)
AML Checks - By Law and in compliance with HMRC regulations, all agents are required to carry out Anti-Money Laundering (AML) checks on any buyer(s) who submit a successful offer. A non-refundable administration fee of £60 inc. VAT to cover these costs is payable by the buyer(s) before the sales transaction can be progressed.
Read less