An end of terrace family home located in a popular residential area of Cosham Drayton within easy access to local shopping amenities, bus routes, commutable road and rail links and also within the catchment of Court Lane and Springfield Schools (subject to confirmation). The extended accommodation comprises; hallway, living room, dining room/family room, fitted kitchen/breakfast room and cloakroom on the ground floor with three bedrooms and bathroom on the first floor. To the rear is an enclosed garden with rear access, early internal viewing is strongly recommended to appreciate both the accommodation and location on offer.
PROPERTY SUMMARY An end of terrace family home located in a popular residential area of Drayton within easy access to local shopping amenities, bus routes, commutable road and rail links and also within the catchment of Court Lane and Springfield Schools (subject to confirmation). The extended accommodation comprises; hallway, living room, dining room/family room, fitted kitchen/breakfast room and cloakroom on the ground floor plus three bedrooms and bathroom on the first floor. To the rear is an enclosed garden with rear access (overgrown), early internal viewing is strongly recommended to appreciate both the accommodation and location on offer.
ENTRANCE Forecourt to front of property,pathway to side of house with gate to rear garden, open porch with original main front door with leadlight panels and matching panels to either side and over leading to:
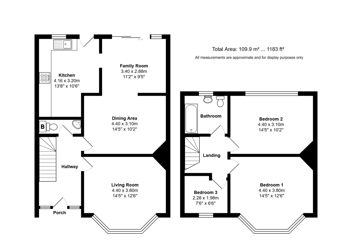
HALLWAY Balustrade staircase rising to first floor with understairs storage cupboard housing meters, laminate flooring, panelled doors to primary rooms.
CLOAKROOM Low level w.c. with concealed cistern, corner wash basin, wall mounted Vaillant gas boiler supplying domestic hot water and central heating (not tested).
LIVING ROOM 14' 5" x 12' 6" into bay window (4.39m x 3.81m) Double glazed bay window to front aspect, radiator, picture rail.
OPEN PLAN DINING / FAMILY ROOM
DINING AREA 14' 5" x 10' 2" (4.39m x 3.1m) Double radiator, laminate flooring, doorway to kitchen, leading to:
FAMILY ROOM 11' 2" x 9' 5" (3.4m x 2.87m) Double glazed window and patio doors leading to rear garden, polycarbonate glazed roof, two radiators, matching flooring, opening to:
KITCHEN/BREAKFAST ROOM 13' 8" x 10' 6" (4.17m x 3.2m) Comprehensive range of matching wall and floor units, range of drawer units, inset single drainer sink with mixer tap, four ring gas hob with stainless steel extractor hood, fan and light over, built-in double ovens with storage cupboards over and under, plumbing for washing machine and dishwasher, space for tumble dryer, recessed spot lighting, radiator, double glazed window overlooking rear garden, double glazed door to rear.
FIRST FLOOR Landing with balustrade, access to loft via extendable ladder, doors to primary rooms.
BEDROOM 1 14' 5" x 12' 6" (4.39m x 3.81m) Double glazed bay window to front aspect, double radiator.
BEDROOM 2 14' 5" x 10' 2" (4.39m x 3.1m) Double glazed window to rear aspect overlooking garden and far reaching views towards Portsdown Hill, radiator.
BEDROOM 3 7' 6" x 6' 6" (2.29m x 1.98m) Double glazed window to front aspect, radiator.
FAMILY BATHROOM White suite comprising; panelled bath with mixer taps and with hand shower head and drench shower, pedestal wash basin with mono bloc mixer taps, corner close coupled w.c., heated towel rail, double glazed window to rear aspect, fully tiled to walls.
OUTSIDE To the front of the property is a forecourt, pathway leading to the rear garden. To the rear is an enclosed garden which is mainly lawned, patio area, water tap, rear vehicular rear access via Langdale Avenue..
AGENTS NOTES Council Tax Band C - Portsmouth City Council
Broadband – ADSL/FTTC Fibre Checker (openreach.com)
Flood Risk – Refer to - (GOV.UK (check-long-term-flood-risk.service.gov.uk)
Photographs - Taken pre-tenancy
AML Checks - By Law and in compliance with HMRC regulations, all agents are required to carry out Anti-Money Laundering (AML) checks on any buyer(s) who submit a successful offer. A non-refundable administration fee of £60 inc. VAT to cover these costs is payable by the buyer(s) before the sales transaction can be progressed.
Read less