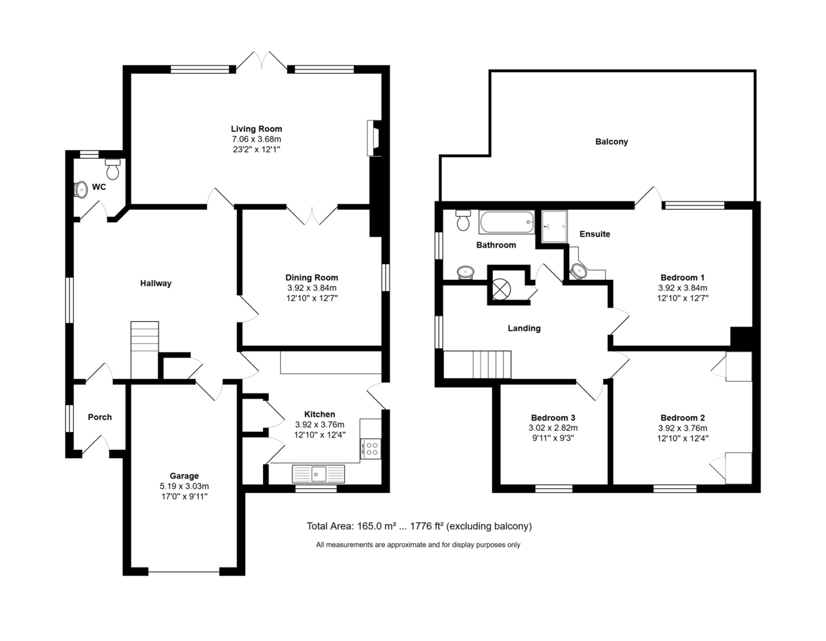
PROPERTY SUMMARY A detached three bedroom family home which is ideally situated in a cul-de-sac location close to shopping amenities, bus routes, road and rail links and within the catchment area for both Court Lane and Springfield Schools (subject to confirmation). The accommodation offers 1776 sq ft of living space arranged over two primary floors and comprises: hallway, cloakroom, 23' sitting room overlooking garden, dining room, kitchen/breakfast room and integral garage on the ground floor with three bedrooms, the primary one having an en-suite shower area and roof terrace and large family bathroom on the first floor. To the front is a lawned garden and driveway to front of garage and to the rear is an established, enclosed southerly facing lawned garden with patio area.
Offered with no forward chain and in need of modernising, early viewing of this family home is strongly recommended in order to appreciate not only the location but also the accommodation on offer.
ENTRANCE Lowered kerb leading to concrete driveway to front of garage, lawned front garden to either side of driveway, to the right hand side is a pathway and gated entrance to rear garden, main front door with frosted panels leading to:
PORCH Double glazed window to side aspect with blind, internal glazed door leading to:
HALLWAY L shaped, double glazed window to side aspect with radiator under, second radiator with cover over, staircase rising to first floor with understairs cupboard housing gas meter and fuse box with automated lighting, doors to primary rooms.
CLOAKROOM Low level w.c., wall mounted wash hand basin with tiled splashback, double glazed frosted window to rear aspect.
SITTING ROOM 23' 2" x 12' 6" (7.06m x 3.81m) Central twin double doors to rear garden with double glazed window with low sill to one side, three double radiators, ceramic tiled surround fireplace with matching hearth and gas fire (not tested), range of shelving to either side, ceiling coving, twin doors leading to:
DINING ROOM 12' 10" x 12' 7" (3.91m x 3.84m) Double glazed window to side aspect with blind, door to hallway, serving hatch to kitchen, radiator with cover over, ceiling coving.
KITCHEN/BREAKFAST ROOM 12' 9" x 12' 4" maximum (3.89m x 3.76m) Double glazed door to side aspect, wall mounted boiler supplying domestic hot water and central heating (not tested), range of matching wall and floor units, eye-level Bosch double oven and grill with storage cupboard over and drawers under, inset four ring gas hob with extractor hood, fan and light over and drawers under, twin stainless steel sink unit with mixer tap, washing machine point, double glazed window with plantation shutter blinds to front aspect overlooking garden, double radiator, two built-in larder cupboards with range of shelving.
INTEGRAL GARAGE 17' 0" x 10' 0" (5.18m x 3.05m) Up and over door, fluorescent tube lighting.
FIRST FLOOR Landing with double glazed window to side aspect, access to loft space, doors to primary rooms, built-in airing cupboard with hot water cylinder.
BEDROOM 3 10' 0" x 9' 1" (3.05m x 2.77m) Double glazed window to front aspect with plantation shutter blinds and radiator under.
BEDROOM 2 12' 9" x 12' 5" (3.89m x 3.78m) Double glazed window to front aspect with plantation shutter blinds, radiator, two built-in wardrobes with rails and shelves over.
BEDROOM 1 INC. EN-SUITE AREA 12' 9" increasing to maximum 19'4" x 12' 4" (3.89m x 3.76m) Bedroom: Range of floor to ceiling built-in wardrobes to one wall with hanging space and shelving, high level over bed shelving and cupboards, double glazed window and door to rear aspect leading to roof terrace, radiator.
En-suite area: Range of drawer units, oval wash hand basin, shower cubicle with rail and curtain, mirror with shaver point and light.
BATHROOM Coloured suite comprising: panelled bath with hand grips, ceramic tiled to half wall level, low level w.c., double glazed frosted window to side aspect with radiator under, pedestal wash hand basin, mirror fronted medicine cabinet.
ROOF TERRACE 23' 0" in width x 12' 0" in depth (7.01m x 3.66m) Southerly facing overlooking rear garden with painted balustrade.
OUTSIDE To the rear is a southerly facing garden with access from the sitting room with steps leading down to patio area, lawned garden with mature flower and shrub borders, side pedestrian access to side.
AGENTS NOTES Council Tax Band F - Portsmouth City Council
Broadband – ADSL/FTTC Fibre Checker (openreach.com)
Flood Risk – Refer to - (GOV.UK (check-long-term-flood-risk.service.gov.uk)
AML Checks - By Law and in compliance with HMRC regulations, all agents are required to carry out Anti-Money Laundering (AML) checks on any buyer(s) who submit a successful offer. A non-refundable administration fee of £60 inc. VAT to cover these costs is payable by the buyer(s) before the sales transaction can be progressed.
Read less