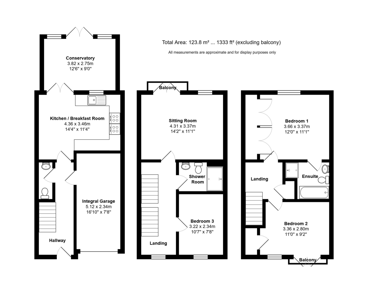
A well presented townhouse situated in the heart of Old Portsmouth which is considered by many to be village within a city, within a few minutes’ walk to the harbour entrance, the old fishing harbour, (Camber Dock), restaurants, public houses and close to the Gunwharf Quays retail and social entertainment facilities, Portsmouth Harbour railway station which provides commutable links to London Waterloo as well as the International Ferry Port. The accommodation is arranged over three primary floors with 1333 sq ft of living space and comprises: hallway, integral garage, cloakroom, kitchen/breakfast room and 12’ conservatory on the ground floor, on the first floor is a sitting room with Juliet balcony to the front, shower room and bedroom and on the top floor are two bedrooms, the primary one having an en-suite shower room. To the front is an integral garage and to the rear is a low maintenance garden and patio, rear pedestrian access leads to an allocated parking.
PROPERTY SUMMARY A well presented townhouse situated in the heart of Old Portsmouth which is considered by many to be village within a city, within a few minutes' walk to the harbour entrance, the old fishing harbour, (Camber Dock), restaurants, public houses and close to the Gunwharf Quays retail and social entertainment facilities, Portsmouth Harbour railway station which provides commutable links to London Waterloo as well as the International Ferry Port. The accommodation is arranged over three primary floors with 1333 sq ft of living space and comprises: hallway, integral garage, cloakroom, kitchen/breakfast room and 12' conservatory on the ground floor, on the first floor is a sitting room with Juliet balcony to the front, shower room and bedroom and on the top floor are two bedrooms, the primary one having an en-suite shower room. To the front is an integral garage and to the rear is a low maintenance garden and patio, rear pedestrian access leads to an allocated parking space accessible from Walton Court. Viewing of this immaculate family home is strongly recommended in order to appreciate not only the accommodation but also the location on offer.
ENTRANCE Lowered kerb leading to integral garage, step up to main front door with covered porch over, external meter cupboards, forecourt with mature shrubs, double glazed main front door with frosted panel leading to:
HALLWAY Balustrade staircase rising to first floor with understairs storage cupboard, radiator with cover over, textured ceiling with coving, alarm panel, panelled doors to primary rooms.
GARAGE 16' 10" x 7' 8" (5.13m x 2.34m) Up and over door, door to hallway, power points.
CLOAKROOM Low level w.c., radiator, vanity unit with oval wash hand basin and mixer tap, tiled splashback, extractor fan, textured ceiling with coving.
KITCHEN / BREAKFAST ROOM 14' 2" x 9' 6" increasing to 11'4" maximum (4.32m x 2.9m) Breakfast area: Wood laminate flooring, twin double glazed doors leading to conservatory, tall contemporary style radiator, ceiling coving.
Kitchen: Comprehensive range of matching wall and floor units, inset single drainer sink unit with mixer tap, plumbing for washing machine (door available if integrated machine is required), integrated dishwasher and tall fridge and freezer with matching doors, pan drawers, one wall mounted unit housing boiler supplying domestic hot water and central heating (not tested), under unit lighting, inset Neff induction hob with glass splashback and cupboards over, eye-level double oven and grill with storage cupboards over and under, kick plate spotlighting, matching flooring, ceiling coving.
CONSERVATORY 12' 6" x 9' 0" (3.81m x 2.74m) Matching wood laminate flooring, glass roof with blinds and spotlights, twin double glazed doors with blinds and full height windows to either side with top openers leading to rear garden, wall lights.
FIRST FLOOR Landing with balustrade, textured ceiling with coving, double glazed window to front aspect with radiator under, central heating control switch, staircase rising to top floor.
BEDROOM 3 10' 7" x 7' 8" (3.23m x 2.34m) Twin doors to Juliet balcony, textured ceiling with coving, radiator, panelled door.
SHOWER ROOM Fully ceramic tiled shower cubicle with sliding panelled door, chrome heated towel rail, concealed cistern w.c. with shelf over, wash hand basin with mixer tap, cupboards under, mirror and light over, tiled splashback, vinyl tile effect flooring.
SITTING ROOM 14' 2" x 11' 1" (4.32m x 3.38m) Double glazed window to rear aspect, textured ceiling with coving, wall mounted pebble inlay and glass fronted electric remote controlled fire, double radiator, double glazed doors to Juliet balcony overlooking garden, panelled door.
TOP FLOOR Landing with balustrade, radiator, access to loft space, textured ceiling with coving, doors to primary rooms, built-in airing cupboard housing hot water cylinder with range of shelving.
BEDROOM 2 11' 0" x 9' 2" (3.35m x 2.79m) Measurements do not include recess with door to built-in wardrobe with hanging space and shelf, double glazed windows to front aspect, radiator, textured ceiling with coving.
BEDROOM 1 12' 0" to front of built-in wardrobes x 11' 1" (3.66m x 3.38m) Range of built-in wardrobes to one wall with hanging space and shelving, measuring approximately 2' in depth, textured ceiling with coving, double glazed window to rear aspect with views towards Gunwharf Quays, No.1 Building and Spinnaker Tower, radiator, door to:
EN-SUITE BATHROOM White suite comprising: panelled bath with hand grips, telephone style chrome mixer tap and shower attachment, low level w.c., wash hand basin, ceramic tiled to half wall level with shelf, mirror fronted cabinet, shaver point, lighting, textured ceiling with coving, extractor fan, heated towel rail, shower cubicle with folding door, drench style hood and separate shower attachment, vinyl tile effect flooring.
OUTSIDE To the rear is a low maintenance garden with shingled areas and patio, the garden is enclosed by fence panelling with rear pedestrian gate leading to allocated car parking space, the car parking is accessible from Walton Court.
AGENTS NOTES Council Tax Band E - Portsmouth City Council
Broadband – ASDL/FTTC Fibre Checker (openreach.com)
Flood Risk – Refer to - (GOV.UK (check-long-term-flood-risk.service.gov.uk)
Read less