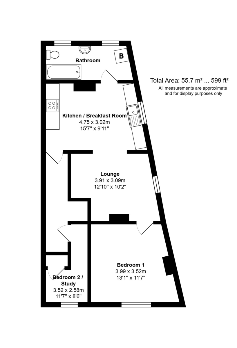
Located at the end of the terrace this first floor apartment has well-proportioned rooms with a light and airy feel and 599 sq ft of living space comprising: hallway, 15’ kitchen/breakfast room with door to bathroom, from the kitchen is an archway leading to 12’ lounge with door to 13’ bedroom, from the hallway is a door to bedroom 2 (which is currently being used as a study). Ideally situated for local amenities, bus routes and commutable road links and offered with gas fired central heating, double glazing and no forward chain, viewing is strongly recommended in order to appreciate both accommodation and location on offer.
PROPERTY SUMMARY Located at the end of the terrace this first floor apartment has well-proportioned rooms with a light and airy feel and 866 sq ft of living space comprising: hallway, 15' kitchen/breakfast room with door to bathroom, from the kitchen is an archway leading to 12' lounge with door to 13' bedroom, from the hallway is a door to bedroom 2 (which is currently being used as a study). Ideally situated for local amenities, bus routes and commutable road links and offered with gas fired central heating, double glazing and no forward chain, viewing is strongly recommended in order to appreciate both accommodation and location on offer.
ENTRANCE Brick retaining wall with wrought iron railings and brick pillared gateway leading to forecourt and main front door leading to:
INNER LOBBY Door to Upper Flat, staircase rising to flat.
HALLWAY Door to kitchen and bedroom 2.
KITCHEN/BREAKFAST ROOM 15' 7" x 9' 11" (4.75m x 3.02m) Double glazed window to side aspect, range of wall and floor units, single drainer stainless steel sink unit with mixer tap and cupboards under, stainless steel four ring gas hob with electric oven under, space and plumbing for washing machine, space for fridge/freezer, ceiling spotlights, radiator, archway leading to lounge, doorway to bathroom.
LOUNGE 12' 10" x 10' 2" (3.91m x 3.1m) Double glazed window to side aspect, wall lights, radiator, wood effect laminate flooring, door leading to:
BEDROOM 1 13' 1" x 11' 7" (3.99m x 3.53m) Recently replastered, double glazed window to front aspect, radiator, ceiling spotlights, power points.
BATHROOM White suite comprising: panelled bath with hand grips, mixer tap with shower attachment and screen, close coupled w.c with dual flush, pedestal wash hand basin with mixer tap, twin double glazed window to rear aspect, wall mounted Glow worm "Energy 25c"combination boiler fitted February 2025 supplying domestic hot water and central heating (not tested), radiator.
BEDROOM 2 / STUDY 11' 7" x 8' 6" (3.53m x 2.59m) L shaped, double glazed window to front aspect, radiator, power points.
TENURE Leasehold 125 years from 1982 81 Years Remaining
GROUND RENT £20.00 per annum
MAINTENANCE No fixed amount, all costs shared equally between the flat below.
AGENTS NOTES Council Tax Band A – Portsmouth City Council
Broadband – ADSL/FTTC/FTTP Fibre Checker (openreach.com)
Flood Risk – Refer to - (GOV.UK (check-long-term-flood-risk.service.gov.uk)
AML Checks - By Law and in compliance with HMRC regulations, all agents are required to carry out Anti-Money Laundering (AML) checks on any buyer(s) who submit a successful offer. A non-refundable administration fee of £60 inc. VAT to cover these costs is payable by the buyer(s) before the sales transaction can be progressed.
Read less