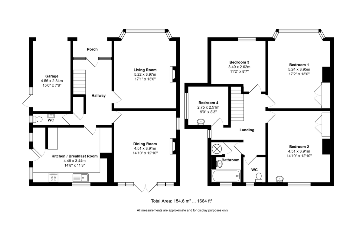
A substantial, detached family home which is situated in one of Drayton’s most popular residential lanes yet within easy access of local shopping amenities, bus routes, commutable road and rail links and catchment for both Court Lane and Springfield Schools (subject to confirmation). The accommodation offers 1664 sq ft of living space and comprises; hallway, living room, dining room, cloakroom, kitchen/breakfast room on the ground floor with four bedrooms, bathroom and separate cloakroom on the first floor. To the front is off road parking and an integral garage with side pedestrian access and to the rear is a westerly facing enclosed garden. The property is offered with no forward chain, gas fired central heating, double glazing and although in need of some updating and redecoration, early internal viewing is strongly recommended in order to appreciate both the potential of the accommodation and location on offer.
PROPERTY SUMMARY A substantial, detached family home which is situated in one of Drayton's most popular residential lanes yet within easy access of local shopping amenities, bus routes, commutable road and rail links and catchment for both Court Lane and Springfield Schools (subject to confirmation). The accommodation offers 1664 sq ft of living space and comprises; hallway, living room, dining room, cloakroom, kitchen/breakfast room on the ground floor with four bedrooms, bathroom and separate cloakroom on the first floor. To the front is off road parking and an integral garage with side pedestrian access and to the rear is a westerly facing enclosed garden. The property is offered with no forward chain, gas fired central heating, double glazing and although in need of some updating and redecoration, early internal viewing is strongly recommended in order to appreciate both the potential of the accommodation and location on offer.
ENTRANCE Lowered kerb leading to L shaped driveway to front of garage and house, retaining wall with fencing over, mature tree, shrubs and bushes, directly to the front of the property is a lawned garden and to the right hand side is a raised flower border, side pedestrian access on both sides of the property lead to the rear garden, arched opening with covered porch, main front door with leadlight frosted panel with matching panels to either side and over leading to:
HALLWAY Picture rail, high skirting boards, panelled doors to primary rooms, ceiling coving, radiator with cover over, balustrade staircase rising to first floor with understairs storage cupboard housing electric meter, wooden parquet flooring.
LIVING ROOM 17' 1" into bay window x 13' 0" (5.21m x 3.96m) Double glazed bay window to front aspect overlooking garden and driveway, ceiling coving, radiator with cover over, central chimney breast with surround fireplace and living flame coal effect gas fire (not tested).
DINING ROOM 14' 10" x 12' 10" (4.52m x 3.91m) Wooden parquet flooring, twin double glazed doors with windows to either side leading to rear garden, central chimney breast with surround fireplace, double glazed frosted window to side aspect, radiator, ceiling coving.
CLOAKROOM Low level w.c., ceramic tiled to half wall level, wall mounted wash hand basin with Triton hot water heater over, double glazed frosted window to side aspect.
KITCHEN/BREAKFAST ROOM 14' 8" max. x 11' 3" max. (4.47m x 3.43m) Original built-in dresser to one wall with glazed doors to upper section and drawers under, free standing Potterton Kingfisher boiler supplying domestic hot water and central heating (not tested), ceramic tiled surrounds, range of wall and floor units, inset single drainer sink unit with mixer tap, space and plumbing for washing machine and dishwasher , double glazed window to rear aspect overlooking garden, gas cooker point, double glazed window to side, extractor fan, door to garden, electric panel heater, ceiling spotlights and coving, larder cupboard with shelving and window to side aspect.
FIRST FLOOR Landing with balustrade, picture rail, double glazed window to side aspect with shelving under, panelled doors to primary rooms.
BEDROOM 4 9' 0" x 8' 3" (2.74m x 2.51m) Double glazed window to side aspect, pedestal wash hand basin with tiled splashback, radiator.
BATHROOM Coloured suite comprising; panelled bath with hand grips, mixer tap with shower attachment, pedestal wash hand basin, ceramic tiled to walls, frosted double glazed window to rear aspect, heated towel rail, built-in airing cupboard with hot water cylinder (not tested) and shelving.
CLOAKROOM Low level w.c., double glazed frosted window to rear aspect.
BEDROOM 2 14' 10" x 12' 10" (4.52m x 3.91m) Double glazed window to rear aspect overlooking garden, radiator, picture rail, central chimney breast with tiled surround fireplace and built-in wardrobe to one side, picture rail.
BEDROOM 1 17' 2" into bay window x 13' 0" (5.23m x 3.96m) Double glazed bay window to front aspect, picture rail, radiator with cover over, central chimney breast with built-in wardrobe to one side.
BEDROOM 3 11' 2" x 8' 7" (3.4m x 2.62m) Double glazed window to front aspect, slight eaves to side ceiling restricting headroom, access to loft storage space, radiator with cover over, storage cupboard.
INTEGRAL GARAGE 15' 0" x 7' 8" (4.57m x 2.34m) Up and over door, side pedestrian door, high level gas meter, lighting.
OUTSIDE Accessible from the kitchen is a door leading to paved side access, cold water tap and power points, wooden built garden shed. Directly to the rear of the property accessible from the dining room is a large patio area and primary garden, the lawned garden is enclosed by fence panelling on either side, trees and evergreens, to one end of the garden is a large shed with pergola and vine over.
AGENTS NOTES Council Tax Band E - Portsmouth City Council
Broadband – ADSL/FTTC Fibre Checker (openreach.com)
Flood Risk – Refer to - (GOV.UK (check-long-term-flood-risk.service.gov.uk)
Read less