A three bedroom, centre of terrace family home which has been updated and redecorated by the current owners and comprises; hallway, 29’ open plan living room / dining room, kitchen, wet room, cloakroom and utility room on the ground floor with three bedrooms and a feature family bathroom on the first floor. Offered with an enclosed rear garden (backing on to trees and school playing field), off road car parking, double glazing and gas fired central heating and being situated in the popular residential area of Cosham, yet within easy access of local shopping amenities, bus routes, recreation grounds, catchment for the local schools and commutable road and rail links. early internal viewing is strongly recommended in order to appreciate both the accommodation and location on offer.
PROPERTY SUMMARY A three bedroom, centre of terrace family home which has been updated and redecorated by the current owners and comprises; hallway, 29' open plan living room / dining room, kitchen, wet room, cloakroom and utility room on the ground floor with three bedrooms and a feature family bathroom on the first floor. Offered with an enclosed rear garden (backing on to trees and school playing field), off road car parking, double glazing and gas fired central heating and being situated in the popular residential area of Cosham, yet within easy access of local shopping amenities, bus routes, recreation grounds, catchment for the local schools and commutable road and rail links. early internal viewing is strongly recommended in order to appreciate both the accommodation and location on offer.
ENTRANCE Lowered kerb leading to resin driveway with parking for approximately two cars, original fencing to one side and low level planters, to the other side is 'wave' style open fencing, storm doors with double glazed panels with frosted panel over and to either side.
PORCH Internal door with leadlight stained glass windows to either side and over with brass furniture, leading to:
HALLWAY Wooden flooring, balustrade staircase rising to first floor with understairs storage cupboard housing gas and electric meters, large built-in cupboard feature borrowed light stained glass window overlooking living room, radiator.
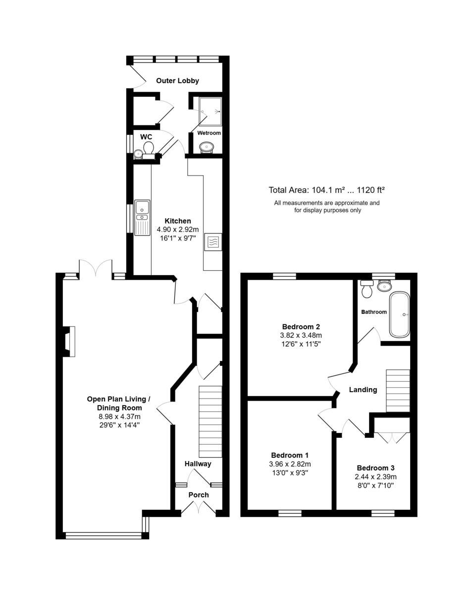
OPEN PLAN LIVING / DINING ROOM 29' 6" x 10' 9" increasing to maximum 14'4" (8.99m x 3.28m) Dining room: Double glazed window to front aspect overlooking driveway with roll top radiator under, picture rail, infinity ceiling with rose, wooden flooring, panelled door to hallway, dimmer switch.
Living room: Central exposed brick surround fireplace with wooden mantle, feature cast iron inlay with tiles, matching flooring, twin double glazed doors with windows to either side leading to rear garden, roll top radiator, picture rail, infinity ceiling, glazed panelled door to:
KITCHEN 16' 1" x 9' 7" (4.9m x 2.92m) Range of cream fronted wall and floor units, inset 1½ bowl sink unit with mixer tap, electric oven, ceramic tiled surrounds, three wall mounted units with glazed doors and glass shelving, space for free standing electric Range style cooker and wooden mantle over Skylight window, ceiling spotlights, extractor fan, access to rear loft space, range of drawer units, vinyl flooring, two wall mounted units with inset curtains and drawers under, pull-out storage cupboard, plumbing for dishwasher, space for free standing fridge/freezer, double glazed window to side aspect, walk-in storage cupboard with glazed door, part-glazed door leading to outer lobby and utility areas, double glazed windows to rear aspect and door to garden, tiled flooring.
WET ROOM Fully ceramic tiled to walls and floor with floor drain away, drench style shower hood, heated towel rail, oval wash hand basin with mixer tap and shelf over, ceiling spotlights.
CLOAKROOM Low level w.c., wash hand basin, ceramic tiled to walls and floor.
UTILITY CUPBOARD Washing machine point, space for tumble dryer, shelf, fully ceramic tiled.
FIRST FLOOR Landing with balustrade, doors to primary rooms, access to loft space via extendable ladder.
BEDROOM 3 8' 0" x 7' 10" (2.44m x 2.39m) Double glazed window to front aspect with radiator under, over stairs built-in storage cupboard with hanging rail and shelving.
BEDROOM 1 13' 0" x 9' 3" (3.96m x 2.82m) Wood laminate flooring, double glazed window to front aspect with radiator under, picture rail.
BEDROOM 2 12' 6" x 11' 5" (3.81m x 3.48m) Double glazed window to rear aspect overlooking garden and woodland beyond, wood flooring, radiator with cover over, picture rail, infinity ceiling.
FEATURE BATHROOM Art Deco style with claw footed double ended bath and separate telephone style mixer tap with shower attachment, wash hand basin with mixer tap and chrome towel rail under, high level w.c. with Burlington cistern and chrome furniture, green and dark green ceramic tiles to walls, double glazed window to rear aspect, roll top radiator, vinyl flooring.
OUTSIDE To the rear accessible from the living room are steps down to crazy paved pathway, small lawned area, raised flowering borders, to the rear is patio area with log store, central brick feature with cast iron lamp, shingled area with further patio.
HOME OFFICE / DEN 10' 1" x 7' 6" (3.07m x 2.29m) Twin glazed doors to front aspect with windows to either side, fluorescent tube lighting, tongue and groove panelling to one two walls and ceiling, feature log burner stove, power points, door to rear.
SHED 8' 3" x 6' 5" (2.51m x 1.96m) Wooden doors to front.
AGENTS NOTES Council Tax Band C - Portsmouth City Council
Broadband – ADSL/FTTC Fibre Checker (openreach.com)
Flood Risk – Refer to - (GOV.UK (check-long-term-flood-risk.service.gov.uk)
AML Checks - By Law and in compliance with HMRC regulations, all agents are required to carry out Anti-Money Laundering (AML) checks on any buyer(s) who submit a successful offer. A non-refundable administration fee of £60 inc. VAT to cover these costs is payable by the buyer(s) before the sales transaction can be progressed.
Read less