A substantial, semi-detached family home which was built in the late 1920’s offering a number of original features including high ceilings, large windows, spacious light and airy rooms as well as some picture rails and high skirting boards. The property has been in the same family ownership for many years and proven to be an excellent home for their growing family with a large westerly facing rear garden, off road parking and a garage providing side pedestrian access. Arranged over two primary floors although there is a large boarded loft room which has been used as a hobbies room in the past, the accommodation comprises: hallway, dining room opening to sitting room, kitchen, home office/family room, utility room, conservatory and shower room on the ground floor with four bedrooms and a large shower room on the first floor. The house is conveniently located within easy walking distance of local schools, recreation grounds, shopping amenities, surgeries and commutable road links. Offere
PROPERTY SUMMARY a substantial, semi-detached family home which was built in the late 1920's offering a number of original features including high ceilings, large windows, spacious light and airy rooms as well as some picture rails and high skirting boards. The property has been in the same family ownership for many years and proven to be an excellent home for their growing family with a large westerly facing rear garden, off road parking and a garage providing side pedestrian access. Arranged over two primary floors although there is a large boarded loft room which has been used as a hobbies room in the past, the accommodation comprises: hallway, dining room opening to sitting room, kitchen, home office/family room, utility room, conservatory and shower room on the ground floor with four bedrooms and a large shower room on the first floor. The house is conveniently located within easy walking distance of local schools, recreation grounds, shopping amenities, surgeries and commutable road links. Offered with no forward chain, early viewing of this impressive family home is strongly recommended in order to appreciate both the accommodation, location and potential on offer.
ENTRANCE Lowered kerb, brick pillared entrance with plaque depicting house number leading to driveway to the full width of property and approximately 38' in depth, to the left hand side is a covered carport with further car parking, manicured hedges, external meter box, to the right hand side of the property is a garage, main front door with frosted panels and matching panel to one side leading to:
LOBBY Tiled flooring, internal glazed door leading to:
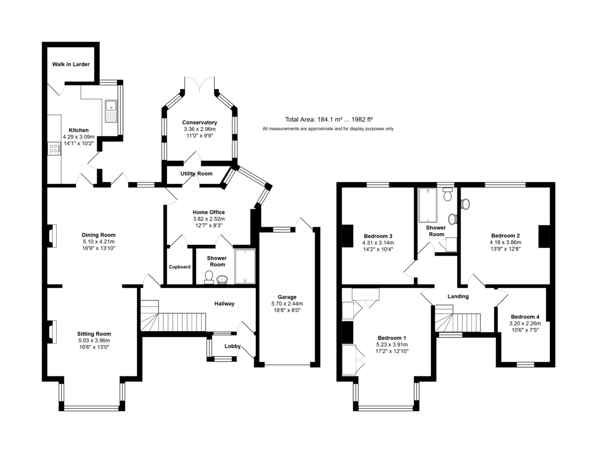
HALLWAY Balustrade staircase rising to first floor with understairs double doored storage cupboard, double radiator, ceiling coving, built-in cupboard housing electric meter, door to:
DINING ROOM 16' 9" x 13' 10" (5.11m x 4.22m) Overall depth of adjoining rooms 31'2" Double radiator, door to home office, double glazed door with window to one side leading to rear garden, ceiling coving, door to kitchen, stone surround fireplace with matching hearth and gas fire (not tested), square opening leading to:
SITTING ROOM 16' 6" x 13' 0" (5.03m x 3.96m) Double glazed square bay window to front aspect with blinds, central chimney breast with shelving to either side, wood surround fireplace, granite inlay and matching hearth with coal effect gas fire (not tested), ceiling coving, picture rail, double radiator.
KITCHEN 14' 1" x 10' 2" maximum, decreasing to 7'0" at narrowest point (4.29m x 3.1m) Door to dining room, comprehensive range of matching soft closing cream fronted wall and floor units, free standing Potterton boiler supplying domestic hot water and central heating (not tested), integrated Neff dishwasher, eye-level Hotpoint double oven and grill with drawers under and cupboard over, inset four ring gas hob with extractor hood, fan and light over, integrated fridge and freezer, drawer units, ceramic tiled surrounds, butler sink with mixer tap, square bay window to side aspect overlooking garden, corner storage cupboard, ceiling spotlights, door to garden, door to:
WALK-IN LARDER 6' 8" x 4' 10" (2.03m x 1.47m) Tiled flooring, range of shelving, lighting, textured ceiling, space for fridge/freezer.
HOME OFFICE 12' 7" x 8' 3" (3.84m x 2.51m) Measurements do not include recessed double glazed square bay window with blinds to rear aspect overlooking garden, door to utility room, built-in storage cupboard, radiator, wood laminate flooring, door to storage cupboard with shelving and cloak hooks, door to:
SHOWER ROOM Shower cubicle with drench style hood and separate shower attachment, wood laminate flooring, chrome heated towel rail, concealed cistern w.c., wash hand basin with mixer tap, mirror over and cupboards under, medicine cabinet, shaver point.
UTILITY SPACE High level storage cupboards, tiled flooring, shelf, plumbing for washing machine with space for tumble dryer over, door to conservatory.
CONSERVATORY 11' 0" x 9' 9" (3.35m x 2.97m) Polycarbonate glazed roof with central fan and lighting, tiled flooring, double glazed windows to all aspects with blinds, twin double glazed doors to rear garden.
FIRST FLOOR Landing with balustrade, double glazed window to front aspect, ceiling coving, panelled doors to primary rooms, access to large loft space via wooden ladder.
BEDROOM 4 10' 6" x 7' 5" (3.2m x 2.26m) Double glazed window to front aspect with radiator under, ceiling coving.
BEDROOM 2 13' 9" x 12' 8" (4.19m x 3.86m) Double glazed window to rear aspect overlooking garden with radiator under, vanity unit with oval wash hand basin and cupboards under, picture rail.
BEDROOM 1 17' 2" into square bay window x 12' 1" maximum (5.23m x 3.68m) Square double glazed window to front aspect with radiator under, range of fitted furniture including wardrobes, vanity unit with glass top, inset mirror and lighting, matching bedside cabinets.
SHOWER ROOM Shower cubicle with large screen, drench style hood and separate shower attachment, close coupled w.c., double glazed frosted window to rear aspect, wash hand basin with mixer tap and cupboards under, medicine cabinet, chrome heated towel rail, built-in airing cupboard housing hot water cylinder and pump.
BEDROOM 3 14' 2" x 10' 4" (4.32m x 3.15m) Double glazed window to rear aspect overlooking garden with radiator under.
LOFT ROOM Accessible via wooden ladder, large loft space with all standing area fully boarded, water tanks, range of shelving, two skylight windows, fluorescent tube lighting.
OUTSIDE Directly to the rear of the house and accessible from the conservatory and kitchen is a patio which wraps round on all sides, stepping onto the westerly facing lawned garden with manicured hedge on one side and fence panelling to the other, the garden is split by a central wall and concrete pillared wall with trellis over, three wooden built garden sheds.
SHED 1 9' 6" x 4' 0" (2.9m x 1.22m) Work bench and lighting.
SHED 2 7' 10" x 7' 0" (2.39m x 2.13m)
SHED 3 16' 0" x 6' 6" (4.88m x 1.98m) High level windows overlooking garden, work bench.
GARAGE 17' 6" x 8' 1" (5.33m x 2.46m) Up and over door, rear pedestrian door to garden, window.
AGENTS NOTES Council Tax Band E - Portsmouth City Council
Broadband – ADSL/FTTC/FTTP Fibre Checker (openreach.com)
Flood Risk – Refer to - (GOV.UK (check-long-term-flood-risk.service.gov.uk)
AML Checks - By Law and in compliance with HMRC regulations, all agents are required to carry out Anti-Money Laundering (AML) checks on any buyer(s) who submit a successful offer. A non-refundable administration fee of £60 inc. VAT to cover these costs is payable by the buyer(s) before the sales transaction can be progressed.
Read less