PROPERTY SUMMARY A three-bedroom detached chalet located in a popular elevated position within easy reach of local amenities, shops, commutable road links and within the catchment of both Solent and Springfield Schools (subject to confirmation). The accommodation is arranged over two floors providing flexible living space and comprises: hallway, shower room, double bedroom, 18' lounge leading to kitchen/breakfast room, utility room 13' sunroom, Jack & Jill cloakroom and a further double bedroom on the ground floor. The first floor is dedicated to the principal bedroom suite which benefits from an en-suite shower room and dressing room. To the front is a crescent shaped driveway and access to garage (restricted) and to the rear is an enclosed southerly facing garden with mature trees and hedges, 11' summer house, wooden shed and a cellar/storage room. Viewing of this adaptable home is strongly recommended to fully appreciate both the accommodation and setting on offer.
ENTRANCE Lowered kerbs leading to crescent shaped brick paviour driveway to front of property with high hedge, driveway to left hand side leading to garage (restricted) and front door, gated access to rear garden, fence panelling to either side of property, steps and hand rail up to main front leading to:
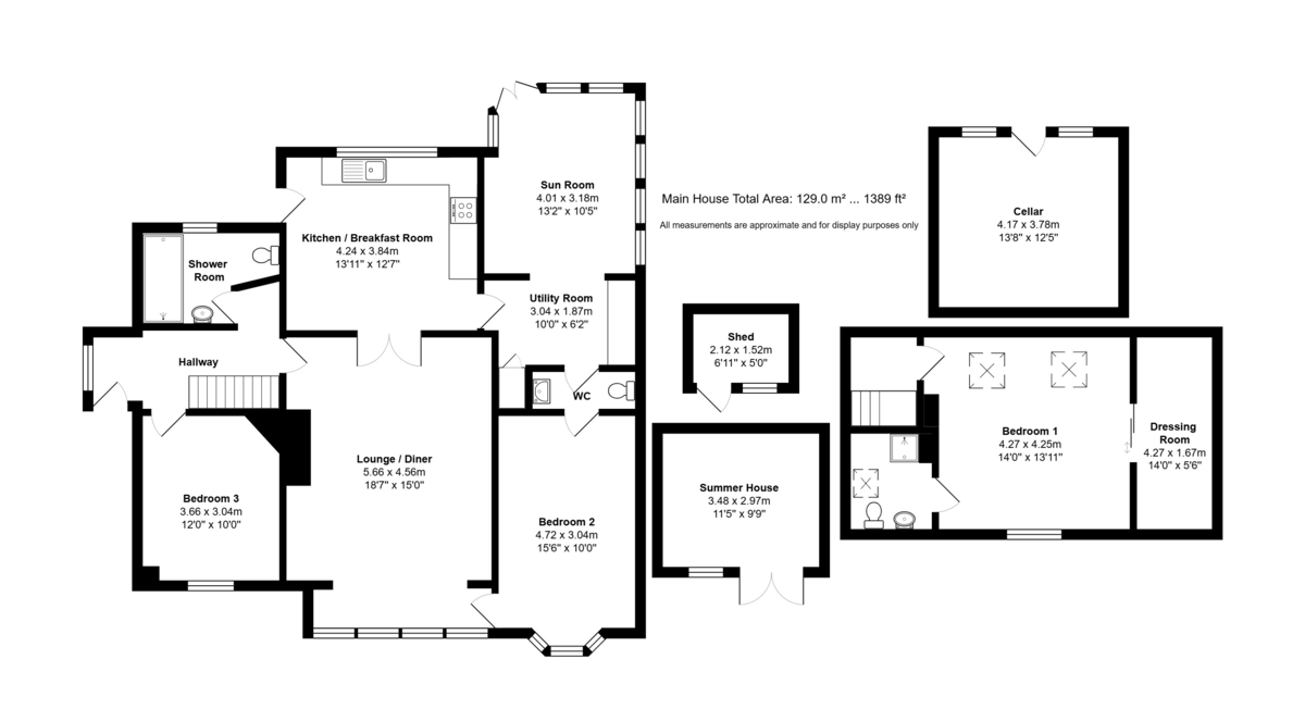
HALLWAY Double glazed window to side, wood effect flooring, radiator, balustrade staircase rising to first floor, doors to primary rooms.
SHOWER ROOM Double glazed frosted window to rear aspect, large walk in shower with screen and drying area to one end, pedestal wash hand basin, w.c., chrome heated towel rail, extractor fan, ceramic tiles to walls, wood laminate flooring.
BEDROOM 3 12' 0" x 10' 0" (3.66m x 3.05m) Double glazed window to front aspect overlooking driveway, radiator.
LOUNGE 18' 7" into bay window x 15' 0" (5.66m x 4.57m) Double glazed bay window to front aspect, feature wooden panelled ceiling, chimney breast with marble hearth, radiator, step up to double doors leading to kitchen, radiator, door to:
BEDROOM 2 15' 6" x 10' 0" (4.72m x 3.05m) Double glazed bay window to front aspect, radiator, door to Jack & Jill cloakroom.
KITCHEN/BREAKFAST ROOM 13' 11" x 12' 7" (4.24m x 3.84m) Comprehensive range of cream wall and floor units with brushed steel T bar handles, single drainer stainless steel sink unit, double oven and grill with storage cupboards over and under, range of pan drawers, built-in wine rack, four ring electric hob with concealed extractor hood, fan and light over, ceramic tiled splashbacks, space for fridge and freezer, stable style door to side aspect and steps down to patio, ceiling spotlights, double glazed windows to rear aspect overlooking garden, vinyl tile effect flooring, door to:
UTILITY ROOM 10' 0" x 6' 2" (3.05m x 1.88m) Range of wall and floor units, space and plumbing for washing machine, archway to sun room, door to Jack & Jill cloakroom, storage cupboard.
SUN ROOM 13' 2" x 10' 5" (4.01m x 3.18m) Double glazed windows with top openers on two aspects overlooking garden, French doors leading to steps down to patio, laminate flooring, radiator.
JACK & JILL CLOAKROOM Vanity unit with wash hand basin, w.c., extractor fan, doors to bedroom 2 and utility room.
FIRST FLOOR Landing, door to:
BEDROOM 1 14' 0" x 13' 11" (4.27m x 4.24m) Double glazed window to front aspect with blinds, two skylight windows to rear with far reaching views towards Langstone Harbour in the distance, two low level double glazed windows with blinds to rear aspect, door to en-suite, radiator, mirror fronted sliding doors leading to dressing room, eaves to front and rear ceilings restricting headroom.
DRESSING ROOM 14' 0" x 5' 6" (4.27m x 1.68m) Range of shelving and hanging rails, radiator, access to eaves storage, eaves to side ceiling restricting headroom.
EN-SUITE SHOWER ROOM Shower cubicle, w.c., pedestal wash hand basin with tiled splashback, radiator, skylight window to front aspect, wood laminate flooring, access to storage eaves, recessed shelving, eaves to ceiling restricting headroom.
OUTSIDE Steps from kitchen and sun room lead to a large full width patio with wooden pergola to one side, steps down to southerly facing lawned garden, the garden is enclosed by fences and hedges, flowering shrub borders, mature trees, door to cellar.
CELLAR 13' 8" x 12' 5" (4.17m x 3.78m) Twin double glazed windows and door to front, laminate flooring, wall lights, power points, radiator, combination boiler supplying domestic hot water and central heating (not tested), access into storage areas and further crawl space storage.
SUMMER HOUSE 11' 8" x 9' 8" (3.56m x 2.95m) Wooden built summer house with double doors and window to front, power points, fluorescent tube lighting, decked area to front.
SHED 6' 11" x 5' 0" (2.11m x 1.52m) Door and window to front aspect.
GARAGE 16' 0" x 9' 0" (4.88m x 2.74m) Electric roller door, side pedestrian door to garden.
AGENTS NOTES Council Tax Band E – Portsmouth City Council
Broadband – ADSL/FTTC/FTTP Fibre Checker (openreach.com)
Flood Risk – Refer to - (GOV.UK (check-long-term-flood-risk.service.gov.uk)
AML Checks - By Law and in compliance with HMRC regulations, all agents are required to carry out Anti-Money Laundering (AML) checks on any buyer(s) who submit a successful offer. A non-refundable administration fee of £60 inc. VAT to cover these costs is payable by the buyer(s) before the sales transaction can be progressed.
Read less