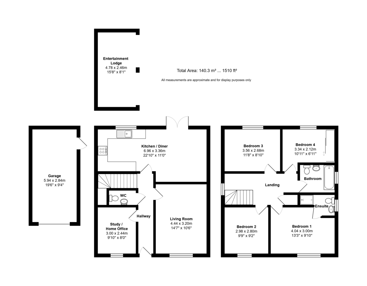
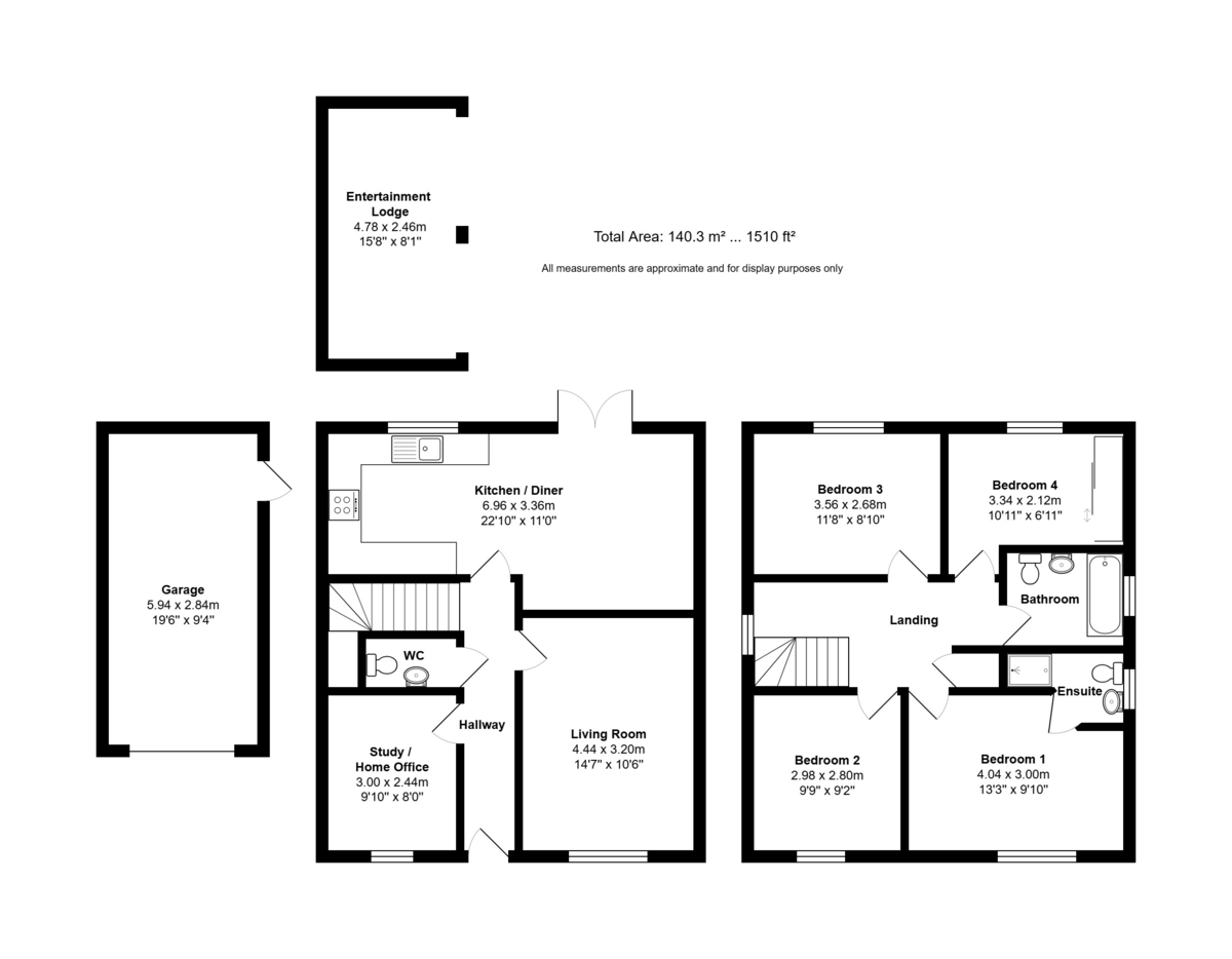
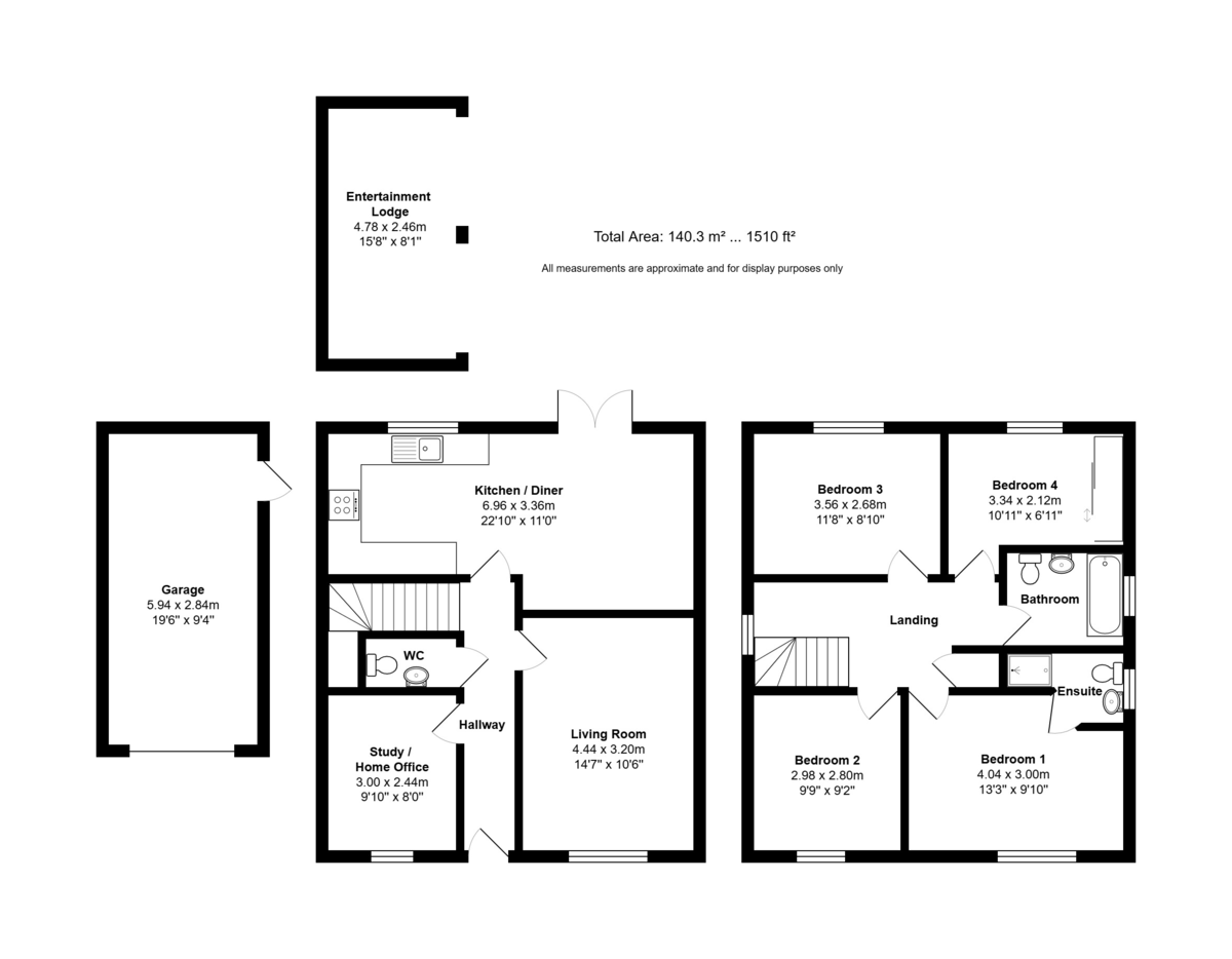
A modern, four bedroom detached family home, situated in an attractive development of similar style homes. No.3 has 1203 sq. ft of living space arranged over two floors and comprises: study, 14’ living room, cloakroom and 22’ kitchen/dining room on the ground floor. Upstairs are four bedrooms, the primary one having an en-suite shower room, and family bathroom. To the front is a garden and garage with off road parking for 2-3 vehicles, to the rear is an established enclosed garden with a detached entertainment lodge. The property is offered with the remaining six years of an NHBC certificate, side pedestrian access and no forward chain. Situated in the heart of Denmead, a village which is next to the Forest of Bere and rural farmland. Denmead still holds its ‘village feeling’ with a chemist, vet, barbers and hardware store. There are two schools, Denmead Infant and Junior.
PROPERTY SUMMARY A modern, four bedroom detached family home which is situated in an attractive development of similar style homes. No.3 has 1203 sq ft of living space arranged over two floors and comprises; study, 14' living room, cloakroom and 22' kitchen/dining room on the ground floor with four bedrooms, the primary one having an en-suite shower room and family bathroom on the first floor. To the front is a garden and garage with off road parking, to the rear is an established enclosed garden with a detached entertainment lodge. The property is offered with the remaining six years of an NHBC certificate, double glazing, solar panels, gas fired central heating, side pedestrian access and no forward chain. Situated in the heart of Denmead, a village which is next to the Forest of Bere and rural farmland, the village still holds its village feeling with a chemist, vet, barbers and hardware store, there are two schools, Denmead Infant and Junior and King George's Field where the village cricket, football, tennis and bowls clubs are based. Early internal viewing is strongly recommended in order to appreciate both the accommodation and location on offer.
ENTRANCE Lowered kerb leading to hardstanding to the left hand side of the property, to the front of the garage, directly to the front is a lawned garden with raised flower borders, pathway to covered porch, main front door with frosted panels leading to:
HALLWAY Vinyl flooring, radiator, panelled doors to primary rooms, staircase rising to first floor.
STUDY 9' 10" x 8' 0" (3m x 2.44m) Double glazed window to front aspect with fitted blind and radiator under, range of fitted furniture including high level open fronted cupboards, surface with drawers under, built-in double doored wardrobe with shelf and rail.
LIVING ROOM 14' 7" x 10' 6" (4.44m x 3.2m) Double glazed window to front aspect, radiator, ceiling coving.
CLOAKROOM Close coupled w.c., wash hand basin with mixer tap and tiled splashback, wall mounted electric consumer box and controls for solar panels, radiator, vinyl flooring, extractor fan.
KITCHEN / DINING ROOM 22' 10" x 11' 0" decreasing to 8'10" at narrowest point (6.96m x 3.35m) Dining area: Vinyl wood effect flooring, radiator, ceiling coving, space for American style fridge/freezer, twin double glazed doors with blinds leading to rear garden.
Kitchen: Comprehensive range of matching wall and floor units with quartz work surface, inset 1½ bowl stainless steel sink unit with quartz drainer to one side, integrated appliances including washing machine, dishwasher with matching door and T bar handles, double glazed window overlooking rear garden, ceiling coving and spotlights, one wall mounted unit housing Ideal boiler supplying domestic hot water and central heating (serviced Sept 2025), inset induction hob with oven under, quartz splashback with extractor hood, fan and light over, range of drawer units, tall larder style unit, matching flooring.
FIRST FLOOR Balustrade landing, double glazed window to side aspect, access to loft space, panelled doors to primary rooms, built-in airing cupboard with shelving.
BEDROOM 1 13' 3" x 9' 10" (4.04m x 3m) Double glazed window to front aspect with radiator under, ceiling coving, door to:
EN-SUITE SHOWER ROOM Shower cubicle with folding door, radiator, low level w.c., pedestal wash hand basin with mixer tap, ceramic tiled splashback, double glazed frosted window to side aspect, extractor fan, vinyl flooring.
BEDROOM 2 9' 10" x 9' 2" (3m x 2.79m) Double glazed window to front aspect with radiator under.
BEDROOM 3 11' 7" x 9' 0" (3.53m x 2.74m) Double glazed window to rear aspect with blind overlooking garden, radiator.
BATHROOM White suite comprising: panelled bath with mixer tap, separate shower over with folding screen, chrome heated towel rail, vinyl flooring, ceramic tiled surrounds, pedestal wash hand basin with mixer tap, close coupled w.c., double glazed frosted window to side aspect, extractor fan.
BEDROOM 4 11' 0" x 6' 9" (3.35m x 2.06m) Measurements do not include recessed area for door opening. Double glazed window to rear aspect with blind overlooking garden, radiator, range of floor to ceiling built-in wardrobes to one wall with mirror fronted sliding doors.
OUTSIDE To the rear is a large patio leading to primary lawned garden with flowering shrub borders, wooden built garden shed, side pedestrian access, lighting and power points, cold water tap, access to garage and detached entertainment lodge.
DETACHED ENTERTAINMENT LODGE 15' 8" x 8' 1" (4.78m x 2.46m) Wooden built cabin with pitched roof, separate electric consumer box, power points, composite decking with wooden built bar area, electric heating, open sided with folding canvas drop down sides.
GARAGE 19' 6" x 9' 4" (5.94m x 2.84m) Remote control up and over door, side pedestrian door to garden, power points, fluorescent tube lighting.
AGENTS NOTES Council Tax Band E – Winchester City Council
Broadband – ADSL/FTTC/FTTP Fibre Checker (openreach.com)
Flood Risk – Refer to - (GOV.UK (check-long-term-flood-risk.service.gov.uk)
Annual Service Charge £318 per Anum
AML Checks - By Law and in compliance with HMRC regulations, all agents are required to carry out Anti-Money Laundering (AML) checks on any buyer(s) who submit a successful offer. A non-refundable administration fee of £60 inc. VAT to cover these costs is payable by the buyer(s) before the sales transaction can be progressed.
Read less