PROPERTY SUMMARY A detached house which is situated in a popular elevated residential location within easy access to local shopping amenities, commutable road links & rail links, Portsdown Hill and catchment for local schools (subject to confirmation). The accommodation has been modernised by the current owner to provide 1787 sq feet of flexible living space comprising: hallway, cloakroom, living room leading to dining room and doors to rear garden, 18' fitted kitchen/breakfast room and family room/bedroom five with en-suite cloakroom on the ground floor. On the first floor are four bedrooms, the primary having an en-suite shower room and family bathroom. To the rear is an enclosed lawned garden with open sided BBQ area and decking, to the front is a paved driveway and further off road parking. The property also benefits from new soffits, facias and guttering, plus a comprehensive CCTV and alarm system, early viewing of this versatile family home is strongly recommended in order to appreciate both the accommodation and location on offer.
ENTRANCE Lowered kerb, brick paviour driveway to left hand side of the property with shingle hard standing to either side providing off road parking for approximately three cars, enclosed by shrubs, evergreens and bushes, to the left hand side is gated entrance to rear garden and meter box, double glazed main front door with full height glass window to one side leading to:
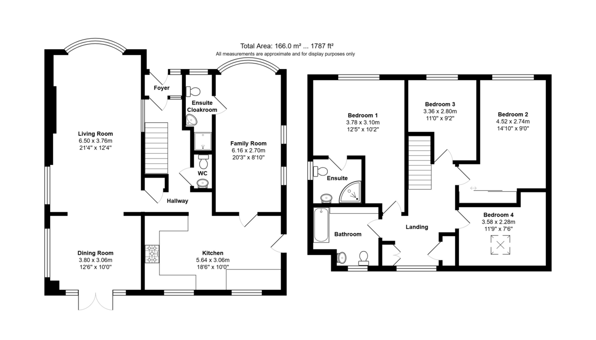
FOYER Quarry tiled flooring, internal door with glazing to one side leading to:
HALLWAY Borrowed light window to living room, balustrade staircase rising to first floor with understairs storage cupboard, radiator with cover over, doors to primary rooms, ceiling coving, square opening leading to:
LIVING ROOM 21' 4" x 12' 4" (6.5m x 3.76m) Square opening to dining room, double glazed leadlight bow bay window to front aspect, vinyl wood effect flooring, media wall with range of cupboards and open shelving with inset Bluetooth LED lighting, wall mounted T.V. with integrated fire under, radiator with cover over, double glazed window to side aspect, ceiling coving.
DINING ROOM 12' 6" x 10' 0" (3.81m x 3.05m) Twin double glazed doors with windows to either side leading to rear garden, matching flooring, high level double glazed windows to side aspect with radiator under, wall lights.
CLOAKROOM Low level w.c., corner wash hand basin with tiled splashback, extractor fan, ceiling coving, matching flooring.
KITCHEN / BREAKFAST ROOM 18' 6" x 10' 0" (5.64m x 3.05m) Comprehensive range of dark grey wall and floor units, range of drawer units, sink unit with Quooker hot tap (recently fitted), ceramic tiled surrounds, integrated dishwasher with matching door, space for free standing Range style cooker with extractor hood, fan and light over, further range of cupboards with deep work surface, American style fridge/freezer, double glazed door and double glazed window to rear aspect overlooking garden, two radiators, vinyl wood effect flooring, double doored storage cupboards with space and plumbing for washing machine and tumble dryer.
FAMILY ROOM / BEDROOM 5 20' 3" x 8' 10" (6.17m x 2.69m) Double glazed bow bay window to front aspect with frosted panels and deep shelf under, radiator, extractor fan, ceiling light, cupboard housing electric consumer box, tall storage cupboard housing Vaillant boiler supplying domestic hot water and central heating (not tested), two frosted double glazed windows to side aspect, vinyl wood effect flooring. Adapted disabled shower area with floor drain away and tiled flooring, door to:
EN-SUITE CLOAKROOM Low level w.c., double glazed frosted window to front aspect, matching tiled flooring, wash hand basin with cupboard under, tiled splashback, mirror, heated towel rail, large deep built-in storage cupboard (former recessed shower area).
FIRST FLOOR Landing, radiator, double glazed windows to rear aspect, built-in airing cupboard with large hot water cylinder and pump system, double doored built-in storage cupboard with range of shelving, panelled doors to primary rooms.
BEDROOM 1 12' 5" x 10' 2" increasing to 16'9" max. (3.78m x 3.1m) Range of wardrobes to one wall with hanging space and shelving, radiator, double glazed dormer window to front aspect, slight eaves to side ceiling restricting headroom, door to:
EN-SUITE SHOWER ROOM Corner tiled shower cubicle with curved doors, drench style hood and separate shower attachment, pedestal wash hand basin with mixer tap, close coupled w.c., vinyl flooring, double glazed frosted window to side aspect, chrome heated towel rail.
FAMILY BATHROOM White suite comprising: panelled bath with mixer tap and shower attachment, separate Mira shower over and screen, double glazed dormer window to rear aspect, shaver point, pedestal wash hand basin, low level w.c., radiator, tiled to half wall level, vanity unit with cupboards under and large mirror over, vinyl flooring.
BEDROOM 3 11' 0" max. x 9' 2" max. (3.35m x 2.79m) Double glazed window to front aspect with radiator under, ceiling coving.
BEDROOM 2 14' 10" x 9' 0" (4.52m x 2.74m) Measurements do not include recessed area for door opening. Double glazed window to front aspect with radiator under, bracket for wall mounted T.V., slight eaves to ceiling one side restricting headroom, built-in wardrobe to one wall with sliding doors, hanging rail and shelving.
BEDROOM 4 11' 9" x 7' 6" (3.58m x 2.29m) Measurements taken from approximately 3'4" off floor level with eaves to rear ceiling restricting headroom, radiator, skylight window, laminate wood effect flooring, recessed area with access to insulated and boarded loft space.
OUTSIDE The rear garden is mainly laid to lawn and enclosed by fence panelling on all sides, large decked area, rockery area with further decked area to one end, lighting, shingled area and storage, BBQ open sided hut, cold water tap.
AGENTS NOTES Council Tax Band E – Havant Borough Council
Broadband – ADSL/FTTC/FTTP Fibre Checker (openreach.com)
Flood Risk – Refer to - (GOV.UK (check-long-term-flood-risk.service.gov.uk)
Furniture can be included by negotiation.
AML Checks - By Law and in compliance with HMRC regulations, all agents are required to carry out Anti-Money Laundering (AML) checks on any buyer(s) who submit a successful offer. A non-refundable administration fee of £60 inc. VAT to cover these costs is payable by the buyer(s) before the sales transaction can be progressed.
Read less