PROPERTY SUMMARY A two bedroom terraced house in central Southsea available now! Freshly decorated, recently fitted carpets, paved courtyard garden, gas central heating, great location close to Fratton Train Station, and local amenities. Early viewing highly recommended.
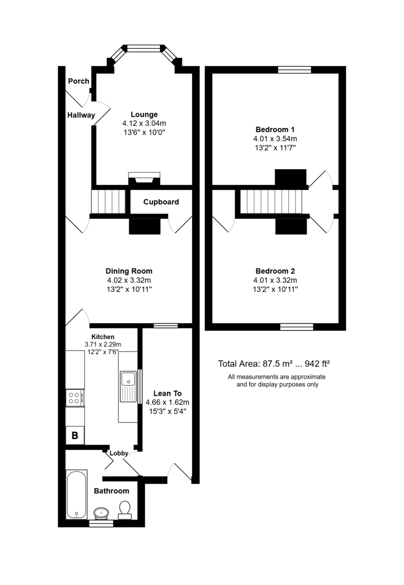
ENTRANCE HALL Front door opening to hallway, door leading to front reception room, stairs to bedrooms, door to the dining room.
RECEPTION ROOM ONE Bay window to front elevation, fireplace with mantel over, radiator.
DINING ROOM Window to rear elevation, under-stairs storage, radiator, opening to kitchen.
KITCHEN Range of base and wall units, free standing cooker, washing machine, counter top dishwasher, door to the bathroom, boiler, door to lean to storage area, window to side elevation.
BATHROOM White suite comprising bath with shower mixer tap, pedestal wash basin, wc, radiator, window to rear.
BEDROOM ONE Double room with built in storage cupboard and window to front elevation, radiator.
BEDROOM TWO Double room with built in storage cupboard and window to rear elevation, radiator.
COSTS If an application for a tenancy is successful, below is an example of the amounts required are shown below:
Holding Fee (1 weeks rent): £ 253.85
One Month's rent in advance: £ 1100.00
Deposit (equivalent to 5 weeks rent): £1269.25
(Please note the above move in figures are for guidance purposes only).
TENANCY TERMS AND CONDITIONS – TENANTS Revised 28th May 2019
Approved Tenant Charges
The only payments you can expect in connection with a tenancy are:
a) the rent
b) a refundable tenancy deposit capped at no more than five weeks' rent. This will be held in a Deposit Scheme as security for the performance of all obligations in connection with the tenancy for example in the case of any damage at the end of the tenancy or a charge to an independent company providing a deposit alternative service, if offered.
c) A refundable holding deposit (to reserve a property) capped at no more than one week's rent. Example - equivalent to One Weeks Rent – i.e. £1,000.00 p.c.m rent equates to £230.76 holding deposit).
We can retain in this holding deposit if you:
• Provide false or misleading information which reasonably affects our decision to let the property to you (i.e. calls into question your suitability as a tenant, this can include your behaviour in providing the false or misleading information).
• Fail a right to rent check
• Withdraw from the proposed agreement (decide not to let) or
• Fail to take reasonable steps to enter an agreement (i.e. responding to reasonable requests for information required to progress the agreement) when the landlord and / or agent has done so.
Where we wish to retain the holding deposit, we will set out in writing the reason for this within 7 days of deciding not to enter the agreement or the 'deadline for agreement'. The 'deadline for agreement' for both parties is usually 15 days after a holding deposit has been received by a landlord or agent (unless otherwise agreed in writing).
d) Payments to change the tenancy when requested by the tenant (e.g. a change of sharer or permission to keep pets at the property) capped at £60.00 inc. VAT.
e) Payments associated with early termination of the tenancy, when requested by the tenant and agreed by the landlord. This would not exceed the financial loss that a landlord will suffer in permitting , or reasonable cost that have been incurred by the agent in arranging for, the tenant t leave early.
f) Payments in respects of utilities, communication services, TV licence and council tax
g) A default fee for late payment of rent and replacement of lost key/security device.
Read less