PROPERTY SUMMARY A three bedroom semi-detached family home which is situated in popular, elevated cul-de-sac location yet within easy access of local shopping amenities, bus routes, recreation grounds and the catchment for both Court Lane and Springfield Schools (subject to confirmation). The property is arranged over two floors and comprises: hallway, living room, dining room, kitchen, conservatory and cloakroom on the ground floor with three bedrooms, separate cloakroom and bathroom on the first floor, to the rear is a westerly facing rear garden with side pedestrian access. The property is in need of some updating however is offered with gas fired central heating and double glazing, and no forward chain, early internal viewing is strongly recommended in order to appreciate both the accommodation and location on offer.
ENTRANCE Brick retaining wall with pillared gateway leading to paved forecourt and pathway to left hand side of the property with brick retaining wall and gate leading to rear garden, steps with railings leading up to double glazed main front door with arched window over and glazed panels to either side leading to:
PORCH Internal glazed door with leadlight panels to either side and over leading to:
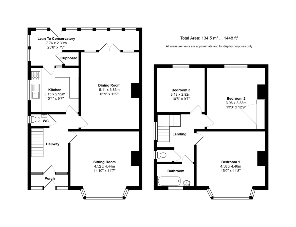
HALLWAY Staircase rising to first floor with understairs cupboard housing gas and electric meters, doors to primary rooms, radiator.
SITTING ROOM 14' 7" into bay window x 14' 10" (4.44m x 4.52m) Double glazed bay window to front aspect, radiator, picture rail.
CLOAKROOM Low level w.c., wall mounted wash hand basin with tiled splashback, double glazed window to side aspect.
KITCHEN 10' 4" x 9' 7" (3.15m x 2.92m) Range of wall and floor units with roll top work surface, inset single drainer stainless steel sink unit with mixer tap, gas cooker point, ceramic tiled surrounds, space for fridge/freezer, double glazed door leading to lean-to/conservatory, textured ceiling with coving, fluorescent tube lighting, double glazed window to side aspect, wall mounted boiler supplying domestic hot water and central heating (not tested).
LEAN-TO / CONSERVATORY Polycarbonate glazed roof, low brick wall with double glazed windows over, double glazed door to rear garden, built-in storge cupboard with shelving.
DINING ROOM 16' 9" x 12' 7" (5.11m x 3.84m) Twin double glazed doors with windows to either side leading to lean-to/conservatory, ceiling coving and rose, picture rail, radiator, wood surround fireplace with marble inlay and hearth, living flame electric fire (not tested).
FIRST FLOOR Landing, double glazed frosted window to side aspect, doors to primary rooms.
BEDROOM 1 14' 8" into bay window x 15' 0" (4.47m x 4.57m) Double glazed bay window to front aspect, radiator, picture rail.
BEDROOM 2 13' 0" x 12' 9" (3.96m x 3.89m) Double glazed window to rear aspect overlooking garden, picture rail, radiator, built-in cupboard with shelving to one side of chimney breast.
BEDROOM 3 10' 5" x 9' 7" (3.18m x 2.92m) Double glazed window to rear aspect overlooking garden, radiator, picture rail.
CLOAKROOM Low level w.c., double glazed window to side aspect.
BATHROOM Panelled bath with tiled surrounds, double glazed frosted window to front aspect, wash hand basin with mixer tap and cupboards under, radiator, access to loft space.
OUTSIDE To the rear is a westerly facing lawned garden enclosed by fence panelling on all sides with mature flowering shrub borders, wooden built shed.
AGENTS NOTES Council Tax Band D – Portsmouth City Council
Broadband – ADSL/FTTC/FTTP Fibre Checker (openreach.com)
Flood Risk – Refer to - (GOV.UK (check-long-term-flood-risk.service.gov.uk)
AML Checks - By Law and in compliance with HMRC regulations, all agents are required to carry out Anti-Money Laundering (AML) checks on any buyer(s) who submit a successful offer. A non-refundable administration fee of £60 inc. VAT to cover these costs is payable by the buyer(s) before the sales transaction can be progressed.
Read less